Apartment for rent - Gütschstrasse 5, 6003 Luzern
Why you'll love this property
Modern kitchen with granite
Stylish bathroom design
Close to public transport
Arrange a visit
Book a visit with Carla today!
City apartment in the best location!
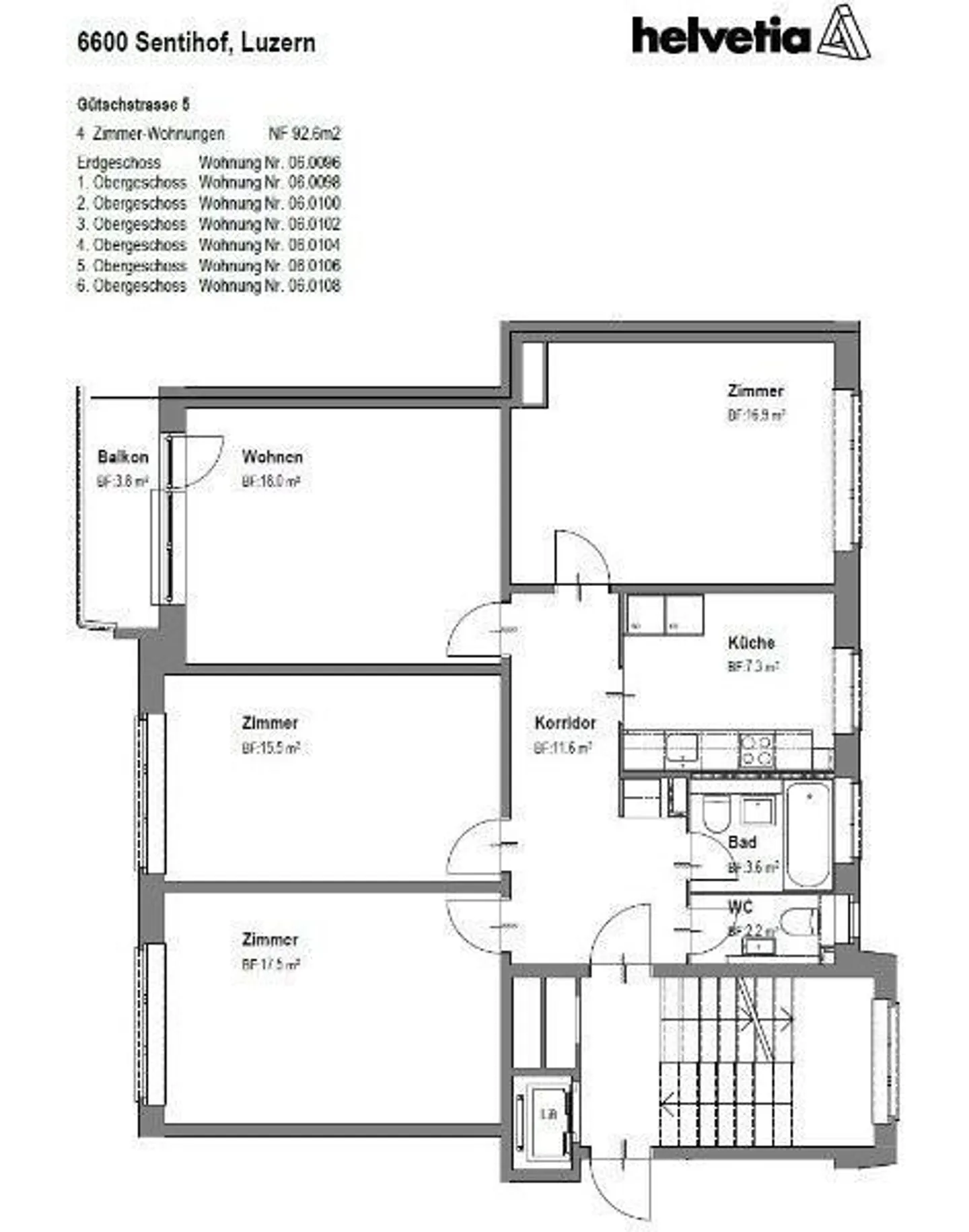
We are renting a 4-room apartment ideal for families.
- modern kitchen with granite countertop, glass ceramic and dishwasher
- contemporary bathroom
- corridor with built-in wardrobes
- parquet in the living, sleeping and children's rooms
- kitchen and wet rooms with tiles
- separate WC
- cellar and attic compartment offers additional storage space
- balcony
- elevator
The apartment was completely renovated in the summer of 2017. Public transport and shopping facilities can be easily reached on f...
Costs breakdown
- Net rent
- CHF 2’670
- Additional costs
- CHF 280
- Total rent
- CHF 2’670
Property details
- Available from
- By agreement
- Rooms
- 4
- Construction year
- 1954
- Living surface
- 100 m²
- Floor
- 3rd



