Apartment for rent - Birseckstrasse 43, 4144 Arlesheim
Why you'll love this property
Bright living room space
Two sunny balconies
Modern kitchen amenities
Arrange a visit
Book a visit with Ridoma today!
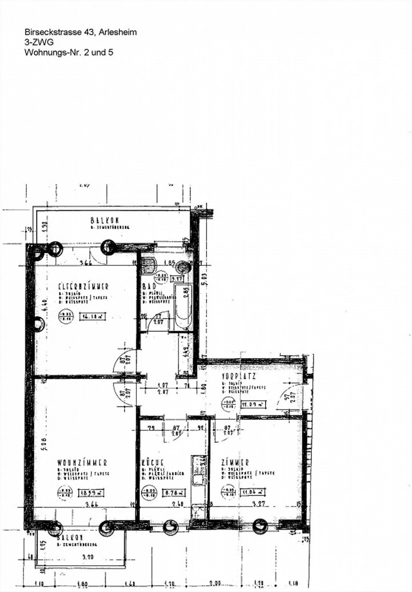
Beautiful, simple 3-room apartment with 2 terraces
We are renting this cozy 3-room apartment in Arlesheim immediately or by arrangement.
The apartment features:
- Kitchen with cast iron hot plates, refrigerator with freezer compartment, dishwasher
- Living room 19m²
- Bedroom 16m²
- Children's room/office, 10 m²
- Bright bathroom/WC with window
- Corridor with built-in wardrobe
- 2 balconies
- Cellar compartment
For shared use: - Laundry room - Bicycle storage
No lift. Dog ownership is not allowed.
Costs breakdown
- Net rent
- CHF 1’390
- Additional costs
- CHF 250
- Total rent
- CHF 1’390
Property details
- Available from
- By agreement
- Rooms
- 3
- Construction year
- 1961
- Living surface
- 72 m²
- Floor
- 2nd



