Apartment for rent - Bahnhofstrasse 43, 4950 Huttwil
Why you'll love this property
Spacious open kitchen
Sunny loggia for relaxation
In-house shopping options
Arrange a visit
Book a visit today!
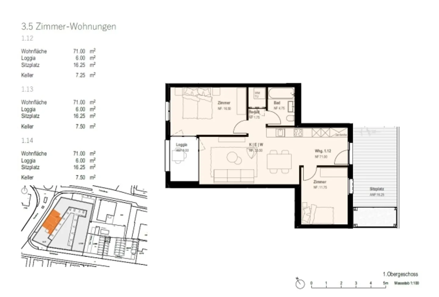
Modern apartment in the best location by the train station
We are renting an attractive, modern 3½-room apartment directly by the train station starting from 01.09.2025 or by arrangement. The apartment impresses with the following advantages:- Well thought-out and versatilely furnishable floor plan- Spacious, bright, and open kitchen with ceramic glass and dishwasher- Modern and high-quality materials - Parquet flooring throughout the apartment- Bathroom/WC with bathtub and separate shower/WC- Washing tower in the apartment, drying room on the floor- Se...
Costs breakdown
- Net rent
- CHF 1’430
- Additional costs
- CHF 180
- Total rent
- CHF 1’430
Property details
- Available from
- By agreement
- Rooms
- 3.5
- Construction year
- 2021
- Living surface
- 71 m²
- Floor
- 1st



