Apartment for rent - Stettfurterstrasse 40, 9548 Matzingen
Why you'll love this property
Eco-friendly Minergie-P
Spacious covered balcony
Open kitchen with island
Arrange a visit
Book a visit with Borcherding today!
Nature-oriented living by the stream
Do you dream of living close to nature and the city? Do you appreciate a living environment with natural materials and contemporary energy standards? In our new multi-family house (2024) in Matzingen, you will find these qualities!
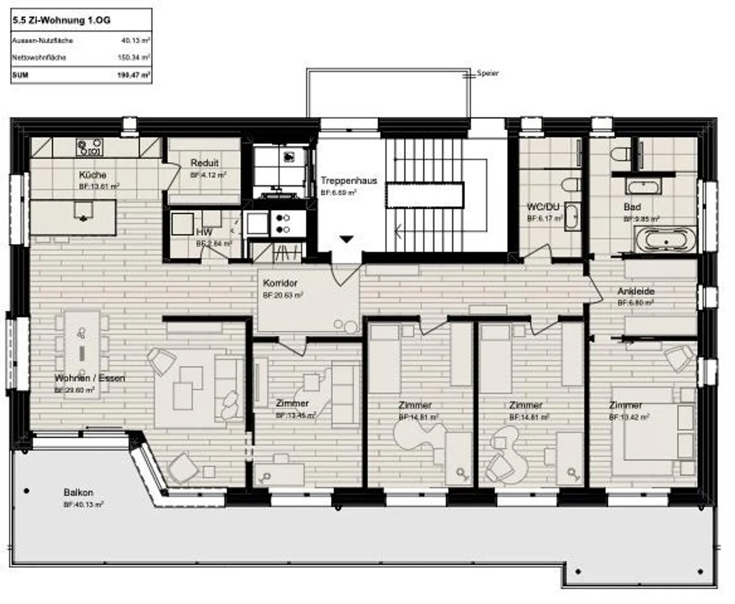
- 5.5 room apartment, ownership standard, in a three-family house, on the edge of the village, directly by the stream
- Living area 150m2 and 40m2 continuously covered balcony area
- All rooms facing south with access to the balcony
- Open kitchen with island and pantry
- ...
Costs breakdown
- Net rent
- CHF 3’010
- Additional costs
- CHF 300
- Total rent
- CHF 3’010
Property details
- Available from
- By agreement
- Rooms
- 5.5
- Construction year
- 2024
- Living surface
- 190 m²
- Floor
- 1st
- Building floors
- 3



