Apartment for rent - 3930 Visp
Why you'll love this property
Sunny west-facing location
Close to public transport
Natural landscaping with playground
Arrange a visit
Book a visit today!
Teelwald residential building - living on the sunny west slope
The two Teelwald buildings A & B are located on a sunny west slope, connected to the towns of Visp and Visperterminen by the Terbinen road. The center of Visp is accessible on foot in a few minutes. A nearby bus stop ensures a good connection to public transport.
The two buildings are connected by a common underground parking lot. The natural landscaping with sunny and shaded areas creates a pleasant living atmosphere and harmonizes perfectly with the integrated children's playground.
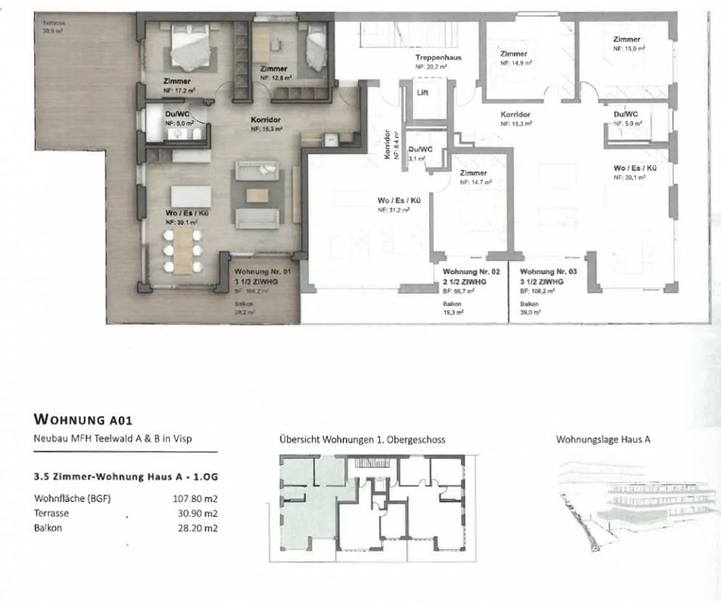
3.5-room a...
Property details
- Available from
- By agreement
- Rooms
- 3.5



