Apartment for rent - Hubstrasse 39, 9500 Wil SG
Why you'll love this property
Bright kitchen with dining space
South-facing balcony
Nearby schools and sports center
Arrange a visit
Book a visit with Marina today!
Central yet quiet location
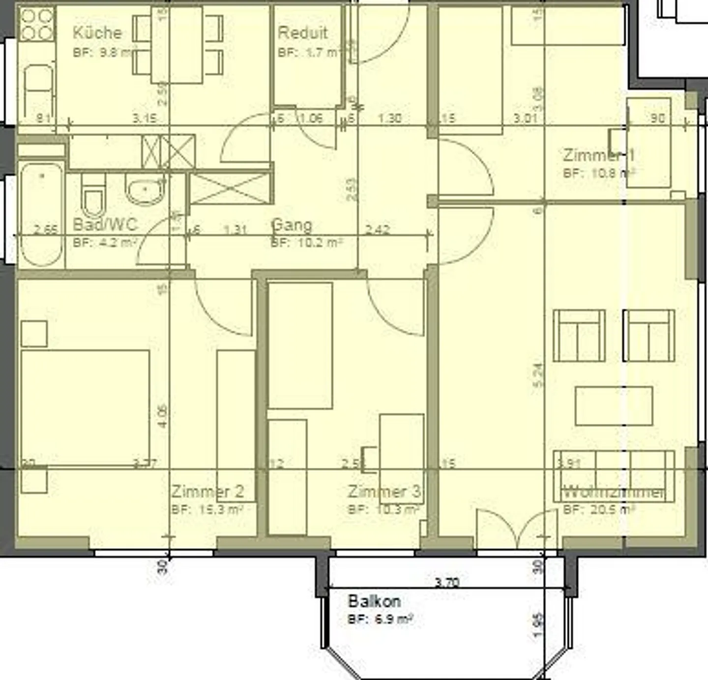
Behind the Wil train station, we are renting out this practical apartment, which offers you the following standard:
- Oak laminate and Novilon floors
- Bright kitchen with space for a dining table
- Bathroom/WC with window
- Storage room
- Built-in wardrobe in the corridor
- Balcony facing south
- Parking spaces can be rented for CHF 120.- per month
Schools and the Bergolz Sports Center are also in the immediate vicinity.
Have we piqued your interest? Then we look forward to hearing from you!
Costs breakdown
- Net rent
- CHF 1’600
- Additional costs
- CHF 270
- Total rent
- CHF 1’600
Property details
- Available from
- By agreement
- Rooms
- 4
- Construction year
- 1963
- Living surface
- 83 m²
- Floor
- 3rd
- Building floors
- 1



