1 / 7

Apartment for rent - Höflistrasse 35, 8135 Langnau am Albis

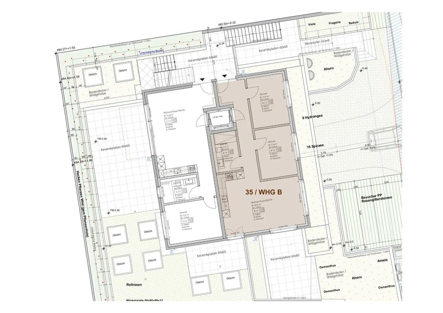
3.5 rooms • 67.26 m²
CHF 3’080.-
CHF 550 m² / year

Why you'll love this property

Central location with amenities

Modern architecture and design

Spacious terrace for relaxation

Arrange a visit

Book a visit with Sadegh today!

Sadegh Karkhaneh
get living
This description has been automatically translated from German.

New build in top location (apt-b)

Discover your new home in our exclusive new building project! With modern construction and contemporary architecture, we set new standards in urban living. Our apartments offer the highest living comfort and are ideal for those seeking something special.

The central location allows you quick access to all important facilities of daily life. Whether shopping, schools, or public transport - everything is in close proximity. Enjoy the advantages of a vibrant environment without having to sacrifice p...

Property details

Available from
By agreement
Rooms
3.5
Construction year
2024
Living surface
67.26
Building floors
4

Features

Balcony
Elevator
Child friendly

Agency

get living
get living
Address:Hertistrasse 29, 8304, Wallisellen, CH
(40 reviews)
Sadegh Karkhaneh
Ref: EY6G-MROK-590
Online since
16/08/2025
2 months ago

Location

Höflistrasse 35, 8135 Langnau am Albis