Penthouse for rent - Glärnischstrasse 303, 8708 Männedorf
Why you'll love this property
Modern open kitchen
Quiet Gold Coast area
Excellent public transport
Arrange a visit
Book a visit with Matias today!
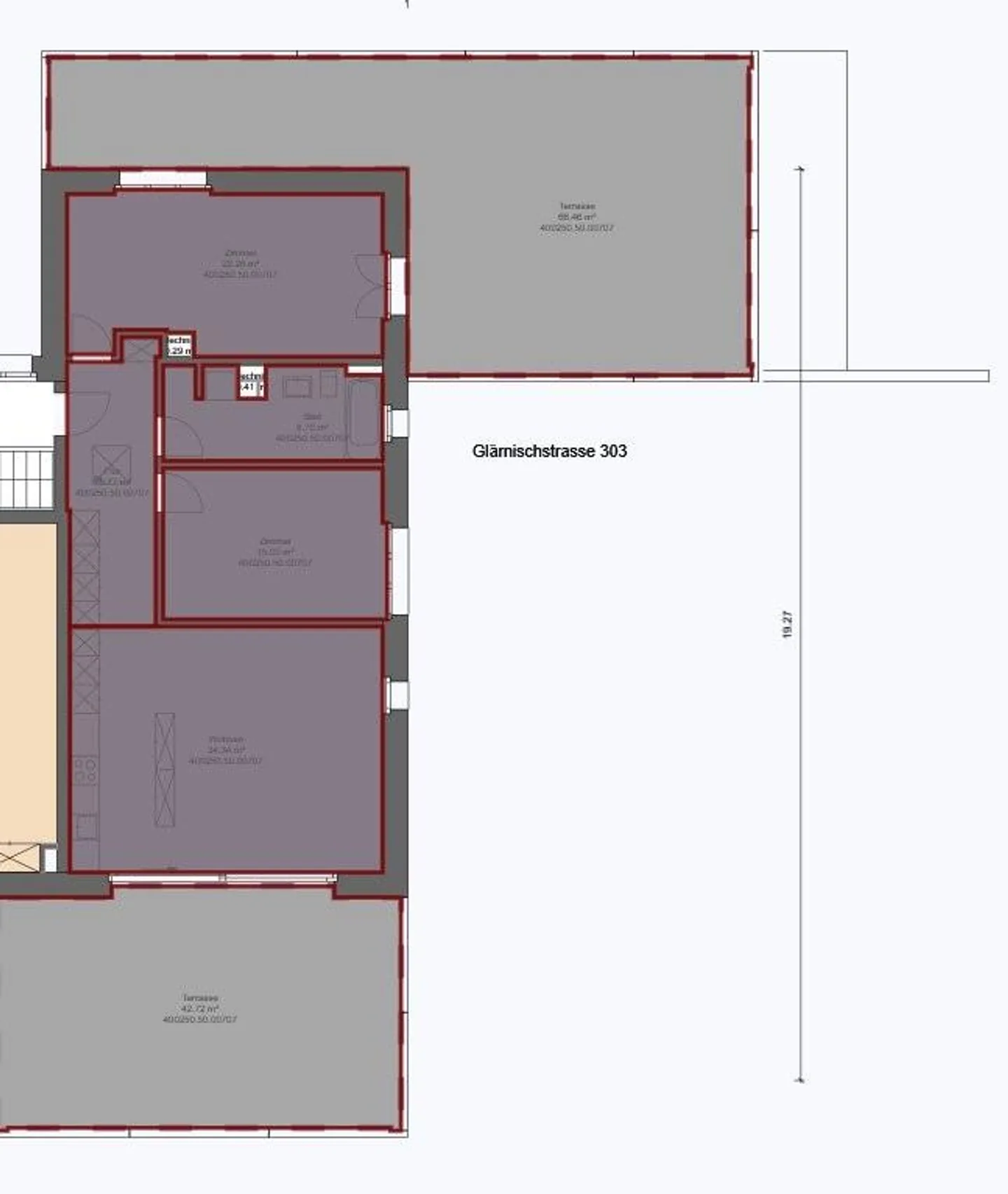
Modern apartment with charm in Männedorf from 01.05.2026
We are renting a 3.5 room attic apartment in Männedorf from May 1, 2026.
The apartment is located in a quiet area of the Gold Coast. It is also excellently connected to public transport.
The apartment offers you the following comfort:
- Open, modern kitchen (ceramic glass, dishwasher)
- Bathroom with bathtub
- Own washing machine / dryer
- Built-in wardrobes for more storage space
- All rooms with parquet flooring
- Cellar compartment
Have we piqued your interest?
Then we look forward to your inquiry via ...
Costs breakdown
- Net rent
- CHF 3’722
- Additional costs
- CHF 330
- Total rent
- CHF 3’722
Property details
- Available from
- By agreement
- Rooms
- 3.5
- Construction year
- 2012
- Living surface
- 89 m²
- Floor
- 4th



