Penthouse for rent - Werner-Kälin-Strasse 3, 8840 Einsiedeln
Why you'll love this property
Spacious terraces for relaxation
Modern kitchen with island
Elegant parquet flooring
Arrange a visit
Book a visit with Emma today!
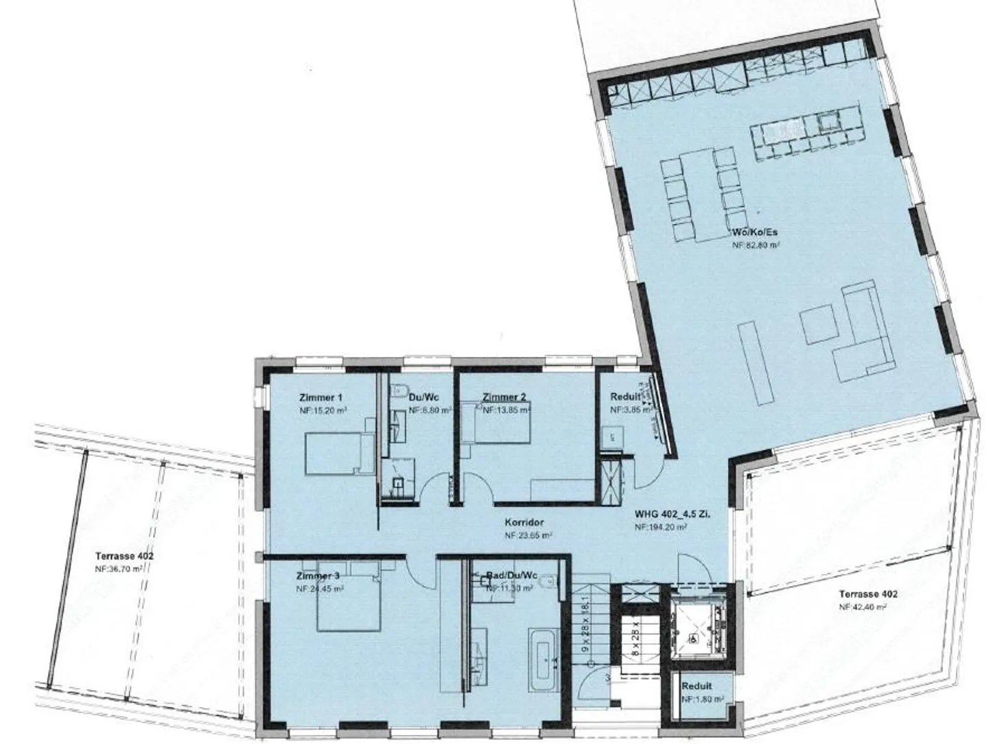
Exclusive penthouse apartment with two terraces in the heart of Einsiedeln
At Werner-Kälin-Strasse 3 in Einsiedeln, we are renting a modern 4.5-room penthouse apartment with two spacious terraces in the heart of Einsiedeln, available immediately or by arrangement.
The apartment impresses with an open floor plan featuring a modern kitchen with an island that flows directly into the living/dining area. The high-quality finish is stylishly complemented by a Bora cooktop and a wine cooler.
From two bedrooms, you can access the approximately 36 m2 large terrace, while the liv...
Costs breakdown
- Net rent
- CHF 4’550
- Additional costs
- CHF 550
- Total rent
- CHF 4’550
Property details
- Available from
- By agreement
- Rooms
- 4.5
- Construction year
- 2019
- Living surface
- 194 m²
- Floor
- 4th



