Apartment for rent - Stationsstrasse 3, 8107 Buchs ZH
Why you'll love this property
Bright living and dining area
Spacious kitchen with storage
Loggia for outdoor relaxation
Arrange a visit
Book a visit with Saskia today!
Central, modern, close to nature
THE MOST IMPORTANT
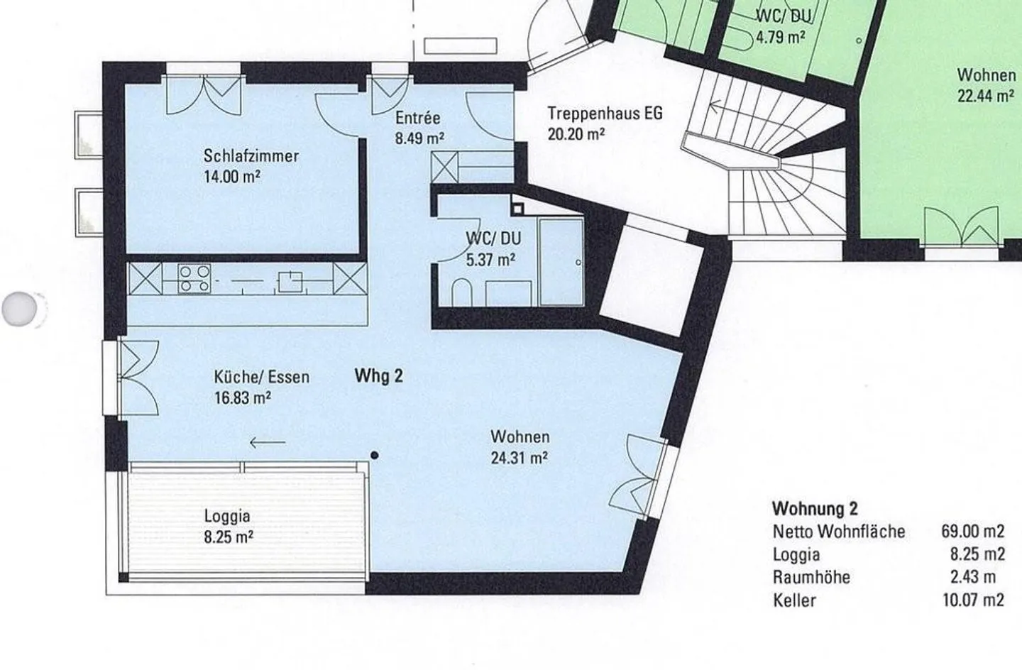
- Friendly entrance
- Bright, light-flooded living and dining room
- Bathroom / WC and kitchen with beautiful tiled floors
- Spacious kitchen with ceramic glass stove, oven, dishwasher, large refrigerator, and plenty of storage space
- Generous loggia
THE LOCATION
- Buchs train station is reachable in 1 minute on foot
- Zurich main station can be reached in 20 minutes
- Shopping opportunities in the center of Buchs
- The highway in all directions can be reached in 8 minutes.
THE SPECIAL
-...
Costs breakdown
- Net rent
- CHF 1’937
- Additional costs
- CHF 250
- Total rent
- CHF 1’937
Property details
- Available from
- By agreement
- Rooms
- 2.5
- Living surface
- 67 m²
- Floor
- 1st



