Apartment for rent - Markgräflerstrasse 3, 4057 Basel
Why you'll love this property
Modern open kitchen
Spacious balcony retreat
Community garden access
Arrange a visit
Book a visit with Stefanie today!
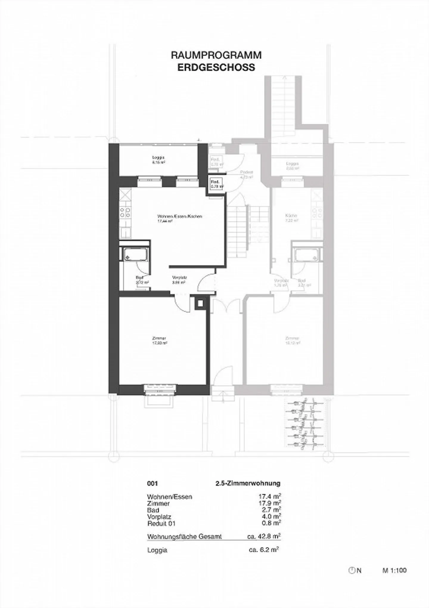
Charming 2-room apartment in renovated old building
We are renting a modern 2-room apartment in a well-kept, renovated old building in the Matthäus quarter.
The apartment features:
* Entrance area, open living kitchen and bedroom with oak parquet
* White kitchen with dishwasher, glass ceramic cooktop and refrigerator with separate freezer
* Generous shower with glass wall and fine stoneware tiles
* Storage room with its own washer-dryer combination
* Large balcony overlooking the quiet courtyard
* Attic compartment
A garden and sufficient bike parking sp...
Costs breakdown
- Net rent
- CHF 1'464
- Additional costs
- CHF 150
- Total rent
- CHF 1'464
Property details
- Available from
- 01.06.2026
- Rooms
- 2
- Living surface
- 42 m²
- Floor
- 4th




