Apartment for rent - Hintergasse 3, 9620 Lichtensteig
Why you'll love this property
Sunny balcony with great views
Spacious kitchen with granite
Practical storage solutions
Arrange a visit
Book a visit with Maureen today!
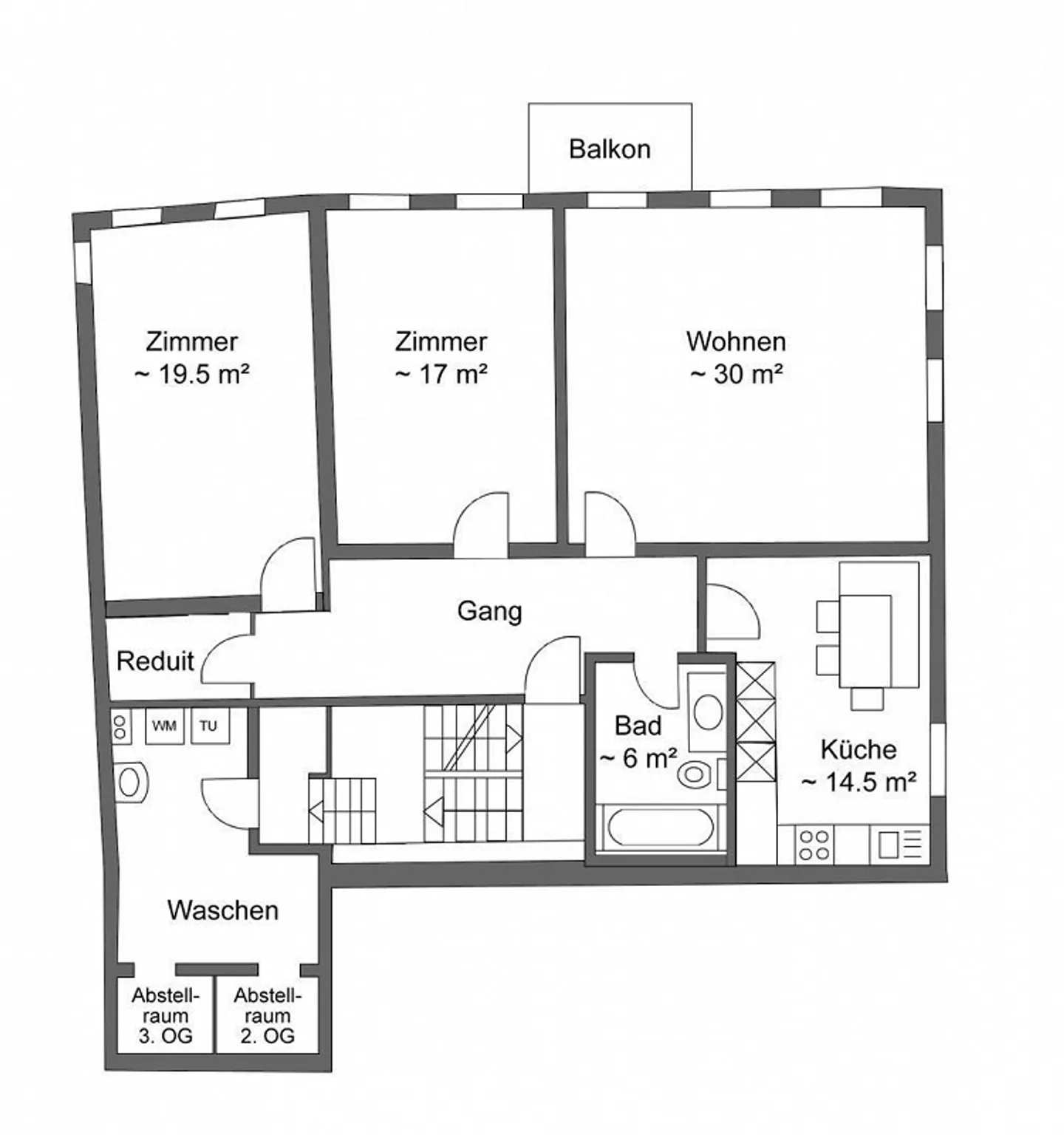
Spacious old town apartment with balcony
The apartment features the following advantages:
+ Spacious living kitchen with granite countertop
+ Bright living room with sunny balcony
+ Storage room and utility room provide practical storage space
+ Parking space directly at the house (CHF 50.- / month)
+ Separate laundry room with washing machine/tumble dryer for 2 parties
+ Wonderful view of the historic old town with evening sun!
+ On the 3rd floor, no elevator available
+ No pets allowed
The central location in the historic center of Lichtenste...
Costs breakdown
- Net rent
- CHF 1’440
- Additional costs
- CHF 190
- Total rent
- CHF 1’440
Property details
- Available from
- By agreement
- Rooms
- 3.5
- Floor
- 3rd



