Apartment for rent - Schaffhauserstrasse 292a, 8500 Frauenfeld
Why you'll love this property
Spacious open kitchen
High-quality finishes
Child-friendly location
Arrange a visit
Book a visit with Canosa today!
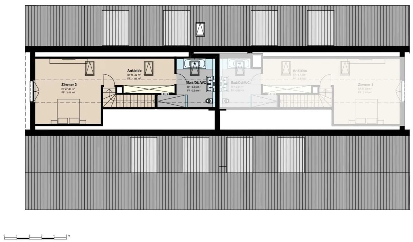
Beautiful Maisonette Apartment in 8500 Frauenfeld
Residential Park "Horgenbach", 8500 Frauenfeld
- Generous, well-designed floor plan
- High standard of finish (owner standard)
- Entire development wheelchair accessible
- Apartment with underfloor heating and beautiful oak parquet, wet areas with ceramic tiles
- with open kitchen with cooking island, granite countertop and wooden bar
- generous storage room to the kitchen
- All kitchen appliances from Miele, glass ceramic with integrated extractor from Bora
- generous wardrobe and built-in closet
- in t...
Costs breakdown
- Net rent
- CHF 2'700
- Additional costs
- CHF 300
- Total rent
- CHF 2'700
Property details
- Available from
- By agreement
- Rooms
- 4.5
- Construction year
- 2023
- Living surface
- 237 m²
- Floor
- 2nd



