Furnished apartment for rent - Baurstrasse 29, 8008 Zürich
Why you'll love this property
Designer kitchen with appliances
Open layout for comfort
Weekly cleaning included
Arrange a visit
Book a visit with Guest today!
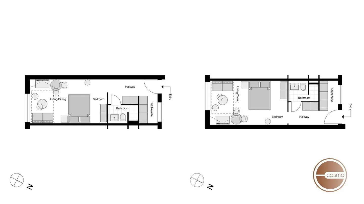
ARTISAN SERENITY - SENIOR STUDIO SERVICED APARTMENT
Spring Offer - CHF 3'590 instead of CHF 3'790! NOT TOO MUCH, NOT TOO LITTLE: JUST RIGHT WITH MORE SPACE!Open floor plan with thoughtful details and an extra touch of comfort.The designer kitchens, cleverly positioned at the entrance, are fully equipped with a large refrigerator, oven and dishwasher. Their strategic layout enhances the feel of a true apartment rather than a studio. The combined living and sleeping area features real parquet flooring and offers plenty of space for living, working,...
Property details
- Available from
- By agreement
- Rooms
- 1.5
- Construction year
- 2019
- Renovation year
- 2020
- Living surface
- 30 m²
- Floor
- 2nd



