Apartment for rent - Bahnhofstrasse 29, 8552 Felben-Wellhausen
Why you'll love this property
Spacious sunny terrace
Modern kitchen with appliances
Open living and dining area
Arrange a visit
Book a visit today!
Bright and modern penthouse apartment
In Felben-Wellhausen, a small municipality right next to Frauenfeld, is the new building Bahnhofstrasse 29. The new building is well connected in terms of transport and offers you a good infrastructure. The train station, bus stop, and shopping facilities are very close by. The motorway entrance Frauenfeld is also in the immediate vicinity.
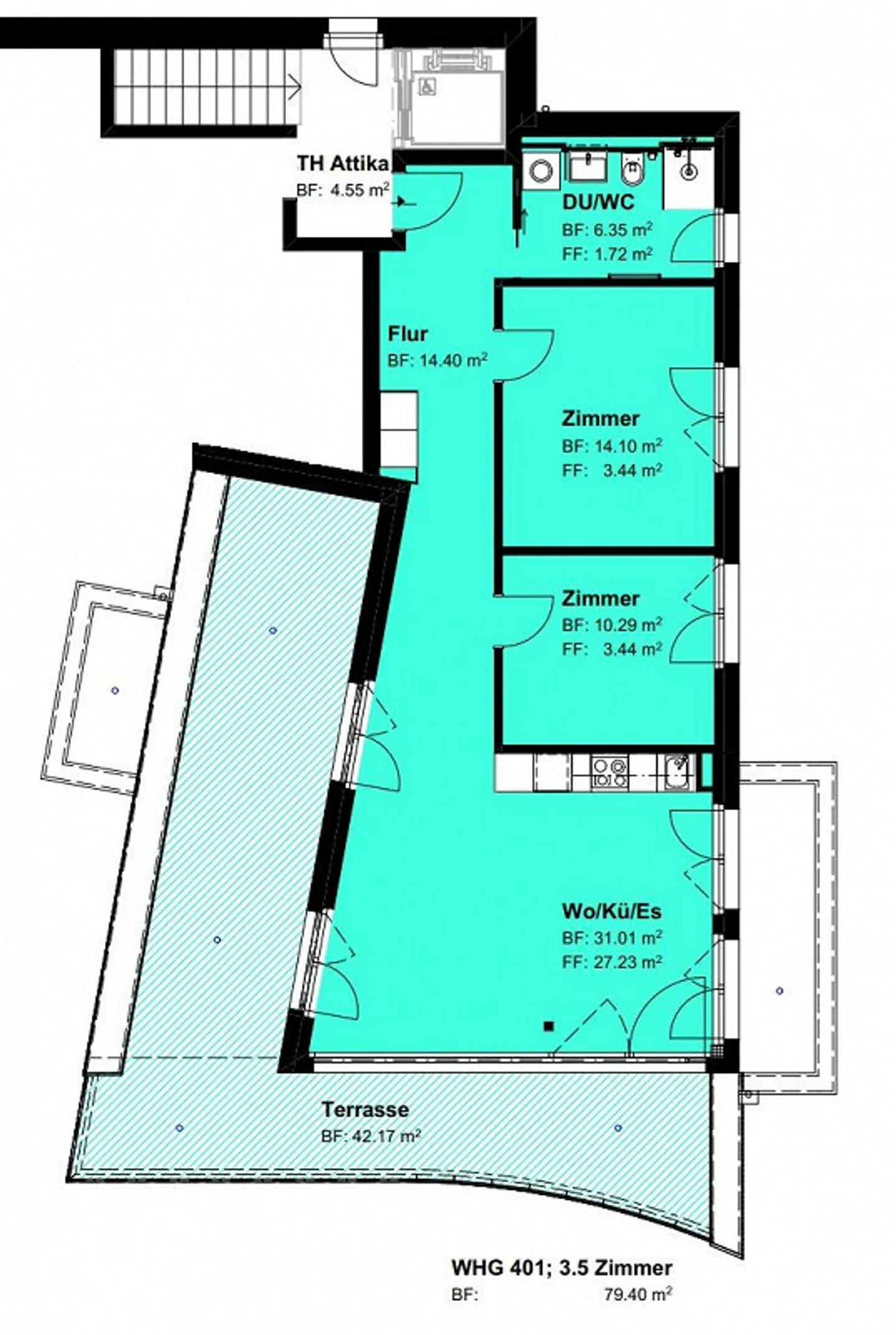
The apartment impresses with its modern design, the spacious and sunny terrace, and its central location.
The kitchen is equipped with a ceramic glass stove, a...
Costs breakdown
- Net rent
- CHF 2’125
- Additional costs
- CHF 270
- Total rent
- CHF 2’125
Property details
- Available from
- By agreement
- Rooms
- 3.5
- Construction year
- 2024
- Living surface
- 80 m²
- Usable surface
- 80 m²



