1 / 17

Apartment for rent - Lerchenweg 24, 8302 Kloten

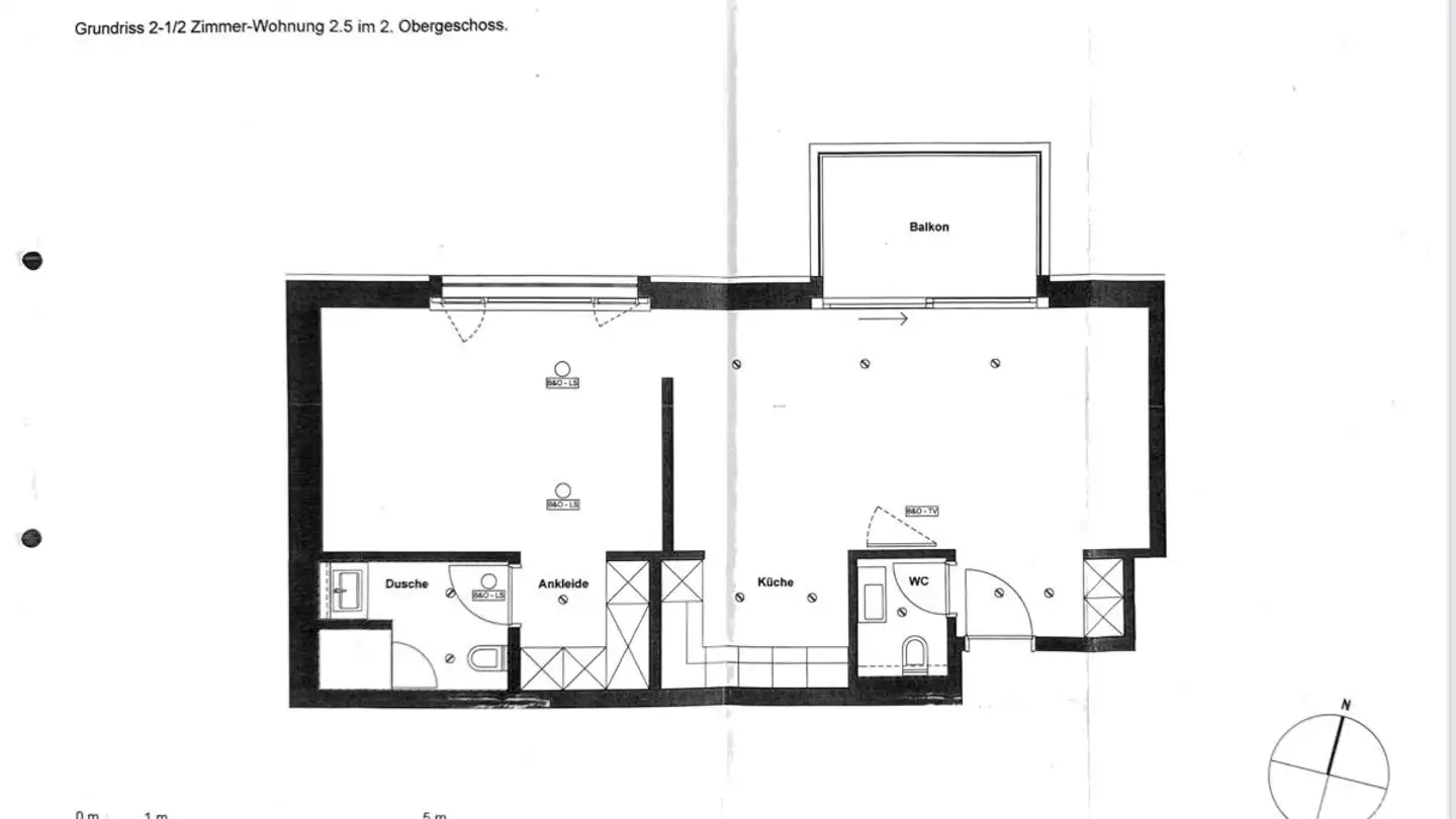
4.5 rooms • 102 m² • 3rd floor
CHF 3’320.-
CHF 391 m² / year

Why you'll love this property

Stylish open living areas

Spacious balconies for relaxation

Eco-friendly Minergie certified

Arrange a visit

Book a visit today!

IT3 Immobilien + Treuhand AG
This description has been automatically translated from German.

New apartment in the development '7 lerchen' - your modern home in kloten

Welcome to the modern residential development '7 Lerchen' on Lerchenweg in Kloten! This attractive new construction project will begin in autumn 2025 and combines stylish living with proximity to nature and the urban dynamics of Kloten. The seven multi-family houses with high-quality wooden facades blend harmoniously into the surroundings and offer 225 modern rental apartments in different sizes and styles - from 2.5 to 5.5 rooms.

Living with style and comfort

The apartments are divided into three...

Property details

Available from
01.12.2025
Rooms
4.5
Living surface
102
Floor
3rd

Features

Garden
Balcony
Elevator
Animal friendly

Agency

IT3 Immobilien + Treuhand AG
Ref: D L24_301.3903779
Online since
17/10/2025
22 hours ago

Location

Lerchenweg 24, 8302 Kloten

Sources