Apartment for rent - Säntisstrasse 22, 8523 Hagenbuch ZH
Why you'll love this property
Cozy balcony with green view
Timeless parquet in bedroom
Bright kitchen and living area
Arrange a visit
Book a visit with Nicole today!
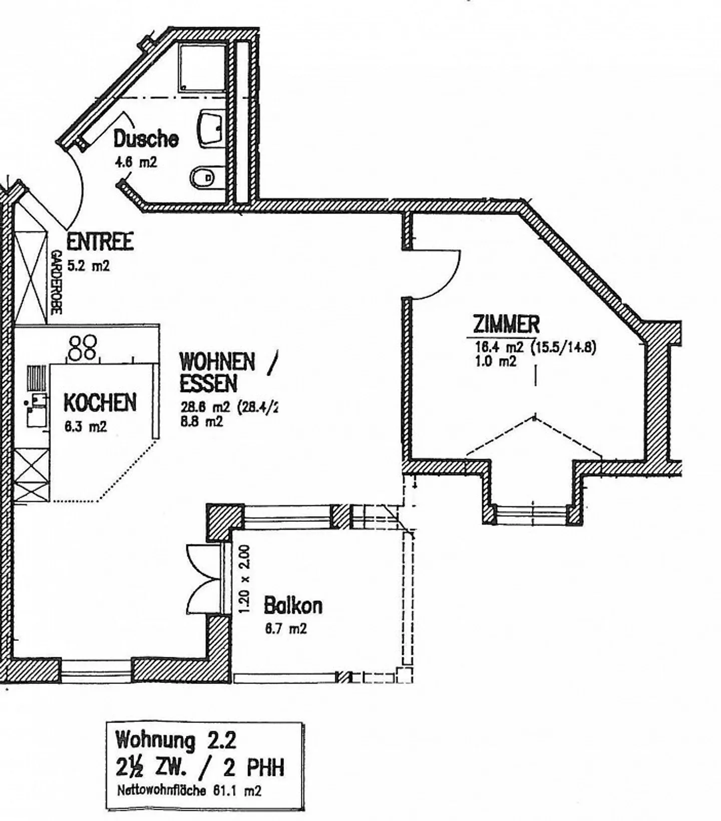
2.5 Room Apartment in Hagenbuch
The property is located in the village center of Hagenbuch and yet surrounded by lots of greenery. Public transport and shopping facilities (Volg) are nearby. The kindergarten and schoolhouse are quickly accessible on foot for children via side streets. The apartment is on the 2nd floor and is characterized by the following details: - Kitchen, bathroom and living/dining area with light tiled floors - Bedroom with timeless parquet flooring - Bathroom with shower/toilet - Cozy balcony with views o...
Costs breakdown
- Net rent
- CHF 1’200
- Additional costs
- CHF 155
- Total rent
- CHF 1’200
Property details
- Available from
- By agreement
- Rooms
- 2.5
- Construction year
- 1996
- Living surface
- 61 m²
- Floor
- 2nd



