Apartment for rent - Avenue Jean-Gambach 22, 1700 Fribourg
Why you'll love this property
Modern kitchen design
Close to train station
Quiet neighborhood charm
Arrange a visit
Book a visit today!
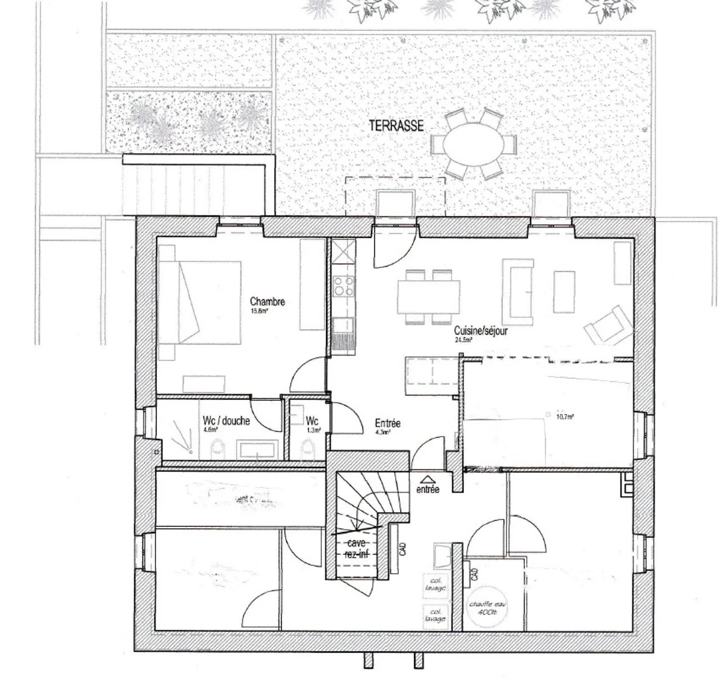
Fribourg / 3.5 rooms on the ground floor
Rare object! We offer for rent in the very nice Gambach-Quintzet neighborhood located behind the Fribourg train station and close to the Gambach college, a modern 3.5-room apartment on the ground floor, including a fitted kitchen, a living room, 2 bedrooms, a shower room, and a guest toilet. An outdoor parking space is available for an additional Fr. 100.-/month. Available immediately! Do not hesitate to contact us for a visit.
Costs breakdown
- Net rent
- CHF 1'830
- Additional costs
- CHF 100
- Total rent
- CHF 1'830
Property details
- Available from
- By agreement
- Rooms
- 3.5
- Living surface
- 60 m²
- Usable surface
- 60 m²
- Floor
- Ground



