1 / 9

Apartment for rent - Stationsstrasse 21, 3097 Liebefeld

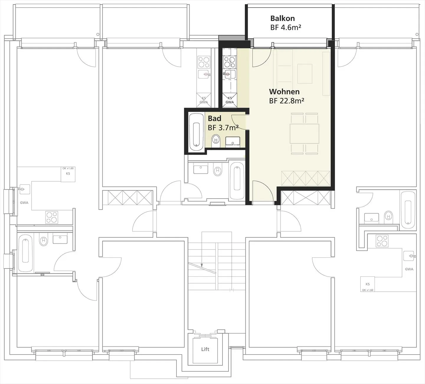
1 room • 27 m²
CHF 868.-
CHF 386 m² / year

Why you'll love this property

Inviting oak parquet floors

Generous balcony with views

Top public transport access

Arrange a visit

Book a visit today!

Patrick Emmenegger
This description has been automatically translated from German.

1-room apartment

Beautiful 1-room apartment in Liebefeld

At Stationsstrasse 21, we offer a modern living space for young and old in the popular Bern Liebefeld district starting January 1, 2026, a beautiful 1-room apartment.

The modern apartment impresses with its very good standard of construction and practical floor plans. The inviting oak parquet creates a cozy atmosphere.

Whether on foot, by public transport, or by car, you can reach shopping facilities and restaurants within a few minutes. The excellent connect...

Property details

Available from
By agreement
Rooms
1
Living surface
27

Features

Garage
Balcony
Elevator
Child friendly

Agency

Patrick Emmenegger
Online since
03/10/2025
16 days ago

Location

Stationsstrasse 21, 3097 Liebefeld

Sources