Apartment for rent - Via Dalla Staziun 20, 7130 Ilanz
Why you'll love this property
Bright, spacious rooms
Modern kitchens and baths
Large terrace and balcony
Arrange a visit
Book a visit with Schneider today!
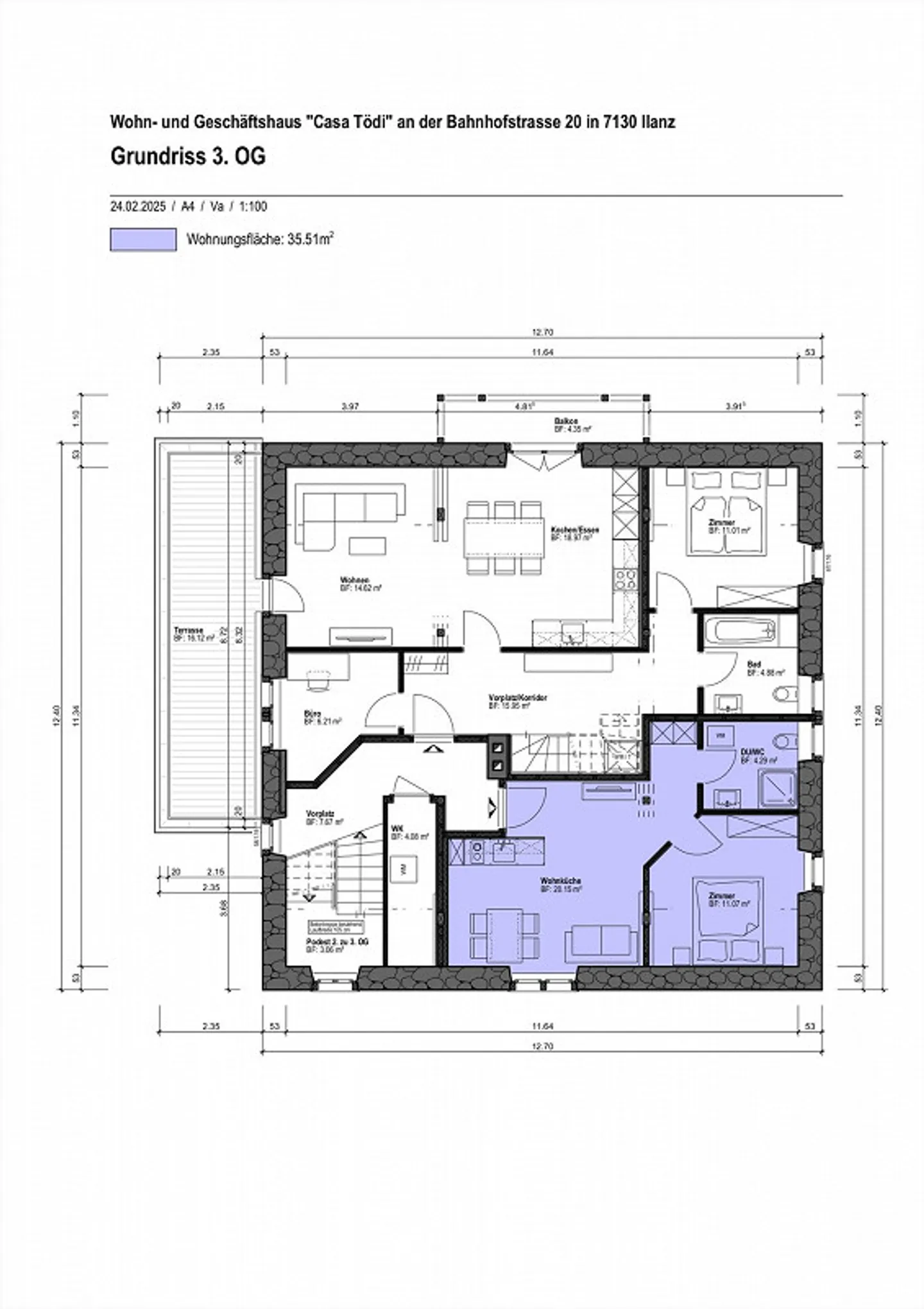
First occupancy after renovation centrally located in ilanz
We are renting out three completely renovated apartments (first occupancy) in a historic building with large, bright rooms at the most central location, available immediately or by arrangement. The proximity to the train station and shopping facilities is just as appealing as the attractive architecture with generous floor plans:
- Upper floor: 5.5-room apartment (123 m2 living space). Additionally, a private laundry room on the floor, large terrace, balcony, and cellar compartment.
- Upper floor:...
Costs breakdown
- Net rent
- CHF 1’100
- Additional costs
- CHF 150
- Total rent
- CHF 1’100
Property details
- Available from
- By agreement
- Rooms
- 2
- Renovation year
- 2025
- Living surface
- 35.5 m²
- Floor
- 3rd
- Building floors
- 4



