Stepped apartment for rent - Neuhofstrasse 20, 8708 Männedorf
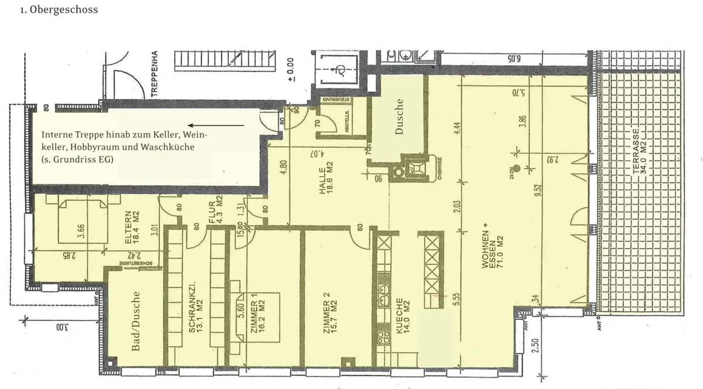
5.5 rooms • 187.3 m²
CHF 6’250
CHF 400 m² / year
Why you'll love this property
Stunning lake and mountain views
High-quality oak parquet flooring
Air-conditioned wine cellar
Arrange a visit
Book a visit with Kehl today!
Kehl
Kehl Immobilien und Treuhand
This description has been automatically translated from German.
BETTER VIEWS
BETTER VIEWS !
Property details
- Available from
- By agreement
- Rooms
- 5.5
- Construction year
- 2002
- Living surface
- 187.3 m²
Features
Elevator
Agency
Kehl Immobilien und Treuhand
Address:Erlenbach, Seestrasse, 8703
Ref: KIT-01-26-209
Online since
08/01/2026
24 hours ago
Location
Neuhofstrasse 20, 8708 Männedorf



