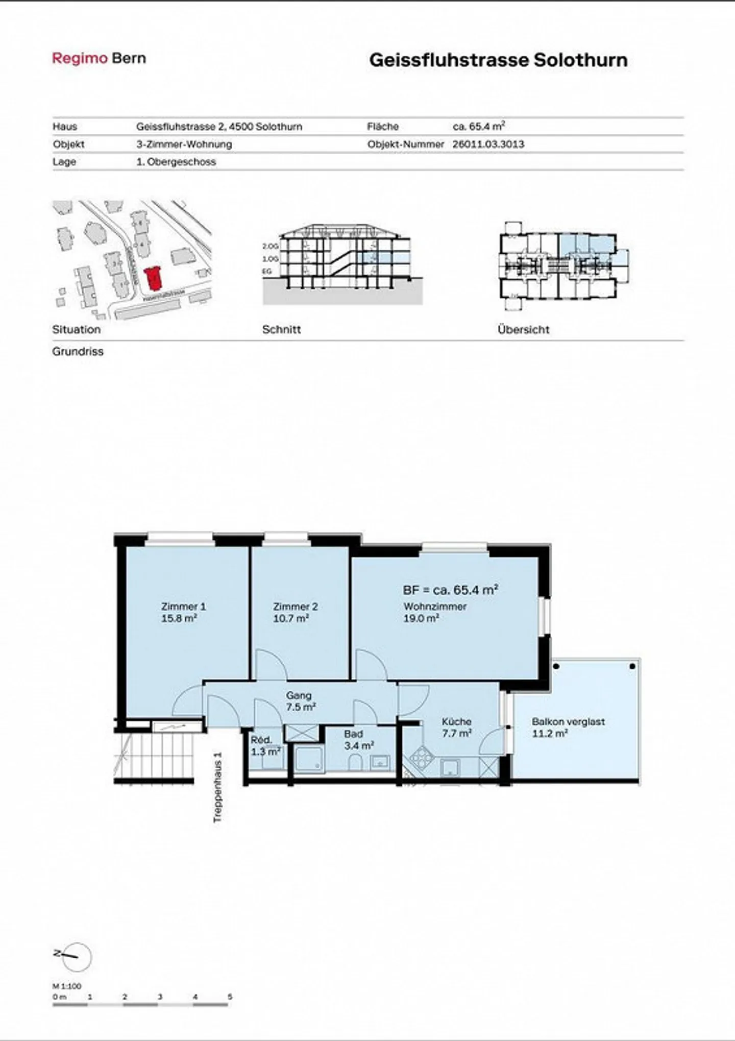
Apartment for rent - Geissfluhstrasse 2, 4500 Solothurn
Why you'll love this property
No deposit required
Modern kitchen amenities
Glazed balcony for views
Arrange a visit
Book a visit with Artan today!
Rent without deposit - good value for money close to the center
The Geissfluhstrasse is located in a quiet area in the northernmost part of Solothurn. The shopping village and the Langendorf train station are within walking distance in just a few minutes. The old town of Solothurn with its numerous specialty shops, diverse restaurants, cafes, and bars, as well as a considerable cultural offering, can also be reached on foot, by bus, or by bicycle.
For your living quality:
- Parquet and tiled floors
- Closed kitchen with ceramic glass cooktop and dishwasher
- Bat...
Costs breakdown
- Net rent
- CHF 1’320
- Additional costs
- CHF 200
- Total rent
- CHF 1’320
Property details
- Available from
- By agreement
- Rooms
- 3
- Construction year
- 1953
- Renovation year
- 2023
- Living surface
- 67 m²
- Floor
- 1st



