Apartment for rent - Via Dragoni 19b, 6929 Gravesano
Why you'll love this property
Spacious garden for kids
Independent entrance access
Electric car charging station
Arrange a visit
Book a visit with Giancarlo today!
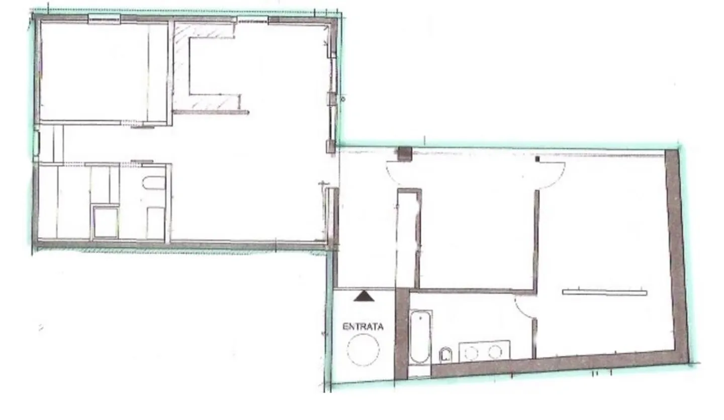
4.5 apartment in a two-family house in gravesano with garden
4.5 apartment of about 120 square meters on the ground floor, with large windows overlooking the garden. 3 rooms (two communicating). In addition, a large storage room. Two bathrooms, one with a shower and one very spacious with a bathtub. Independent entrance, 2 uncovered parking spaces, covered charging station for electric cars, large garden with space for a vegetable garden and play area for children. Laundry with washing machine and dryer. Fiber optic coming soon.
Very quiet area, with plent...
Property details
- Available from
- By agreement
- Rooms
- 4.5
- Living surface
- 120 m²
- Floor
- Ground
- Building floors
- 1



