Apartment for rent - 1934 Le Châble VS
2.5 rooms • 47 m² • Ground floor
CHF 1’600
CHF 409 m² / year
Why you'll love this property
Bright living room
Open kitchen design
Close to cable cars
Arrange a visit
Book a visit today!
This description has been automatically translated from German.
New apartment / utilities included
This new building, just a few steps from the Châble cable cars, still has some apartments available for annual rental:
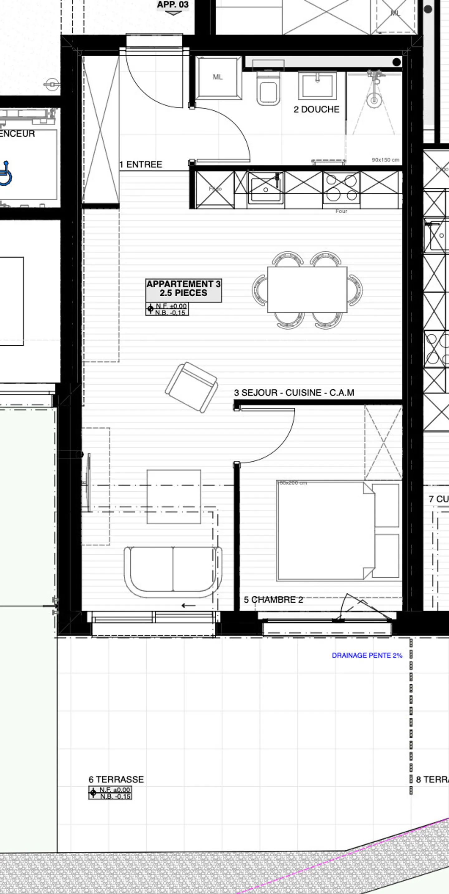
This 2.5-room apartment on the ground floor offers high-quality amenities and is presented as follows:
* a bright living room
* open kitchen
* double room
* shower
* cellar
* parking space
Only for primary residence
*December 2025
Property details
- Available from
- 01.12.2025
- Rooms
- 2.5
- Construction year
- 2025
- Living surface
- 47 m²
- Floor
- Ground
Features
Balcony
Elevator
Wheelchair accessible
Points of interest nearby
Public transportation - 0.3 km
Shopping - 0.5 km
Agency
Online since
04/11/2025
13 hours ago
Location
1934 Le Châble VS




