Apartment for rent - Neubrückstrasse 19, 2555 Brügg BE
Why you'll love this property
Spacious balcony for relaxation
Modern kitchen with dishwasher
No deposit required for rent
Arrange a visit
Book a visit today!
Living by the Aare
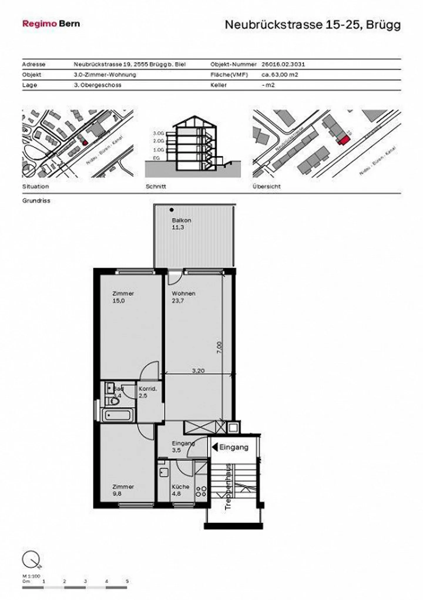
In this multi-family house with eight residential units, you can expect a bright and comfortable apartment. The recreational area by the Aare invites you to stroll and relax. Shopping facilities and bus stops are within a few minutes' walk.
For your living quality:
- Closed kitchen with dishwasher and ceramic glass stove
- Tile and parquet floors
- Bathroom with bath/WC
- Built-in wardrobes in the living room
- Large balcony
- Cellar compartment
With this rental property, you do not have to pay the usua...
Costs breakdown
- Net rent
- CHF 1’230
- Additional costs
- CHF 200
- Total rent
- CHF 1’230
Property details
- Available from
- 01.02.2026
- Rooms
- 3
- Construction year
- 1962
- Living surface
- 63 m²
- Floor
- 3rd



