Apartment for rent - Steinentorberg 18, 4051 Basel
Why you'll love this property
Spacious open layout
Elegant oak parquet
High energy efficiency
Arrange a visit
Book a visit today!
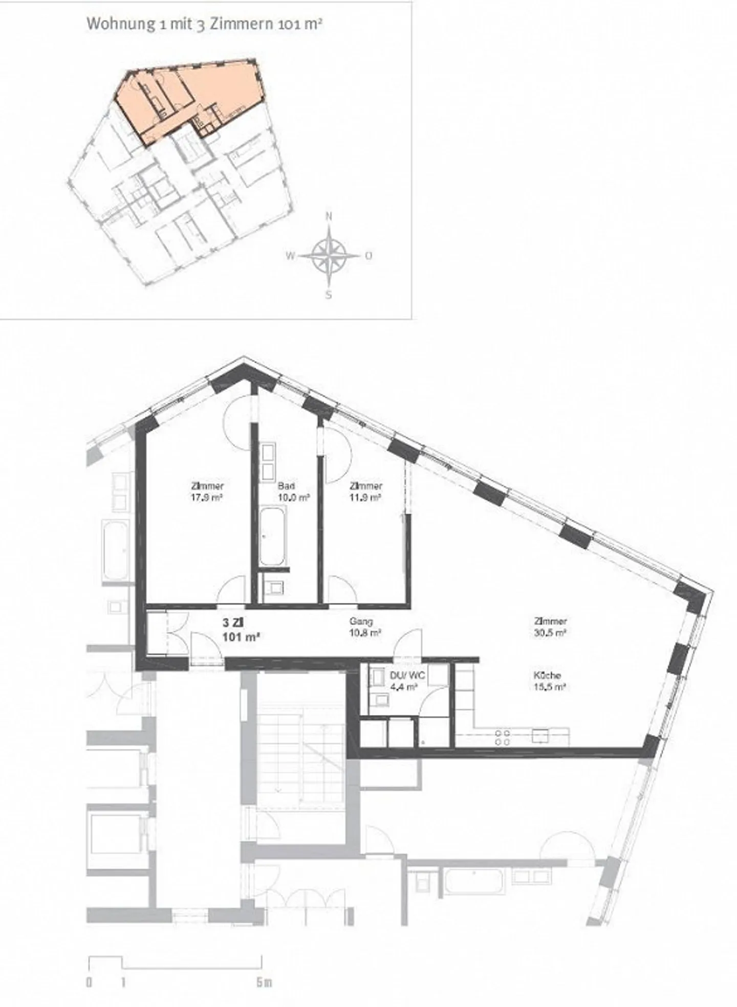
Modern and Central Living
This exclusive 3-room apartment on the 2nd floor impresses with:
- generous floor plan
- light-flooded rooms
- elegant oak parquet
- Minergie standard
- underfloor heating and comfort ventilation
- white high-gloss kitchen with black granite countertop, oven with integrated steamer, glass ceramic hob with Tiptronic
- bathroom/WC and separate shower/WC with washing tower
- fiber optic network connection for TV, internet, telephone
- beautiful view
The apartment is located directly next to the market hall. ...
Costs breakdown
- Net rent
- CHF 2’600
- Additional costs
- CHF 350
- Total rent
- CHF 2’600
Property details
- Available from
- 01.06.2026
- Rooms
- 3
- Construction year
- 2011
- Living surface
- 101 m²
- Floor
- 2nd



