Apartment for rent - Riehenring 174, 4058 Basel
Why you'll love this property
Modern kitchen with V-Zug appliances
High ceilings with large windows
Sustainable energy system
Arrange a visit
Book a visit with Catherine today!
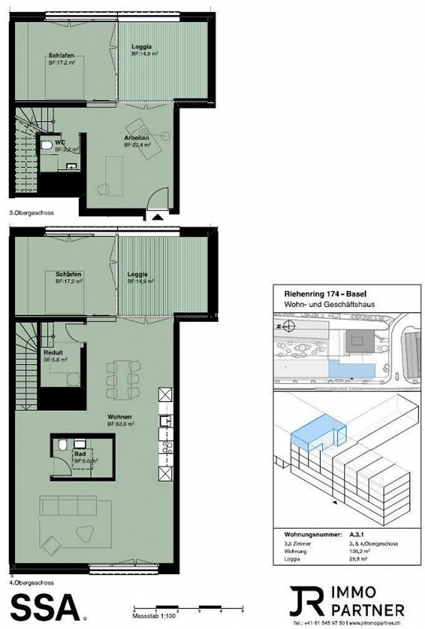
3.5-room maisonette loft apartment with exclusive expansion
We are renting a 3.5-room maisonette loft apartment on Riehenring 174 in Basel from April 16, 2026, or by arrangement, located on the 3rd/4th floor with two balconies.
The apartment is original and unique, distributed over two floors in loft style. All apartments in this residential and commercial building are accessed via a corridor and a large elevator. Internal access is via an oak wooden staircase.
The modern materialization stands out. Urban living in an urban environment.
The apartment featur...
Costs breakdown
- Net rent
- CHF 3’730
- Additional costs
- CHF 415
- Total rent
- CHF 3’730
Property details
- Available from
- By agreement
- Rooms
- 3.5
- Construction year
- 2022
- Living surface
- 142 m²
- Floor
- 3rd



