Apartment for rent - Riehenstrasse 163, 4058 Basel
Why you'll love this property
Bright kitchen
Bathtub in bathroom
Sunny living area
Arrange a visit
Book a visit with Alle today!
Living near Badischer Bahnhof!
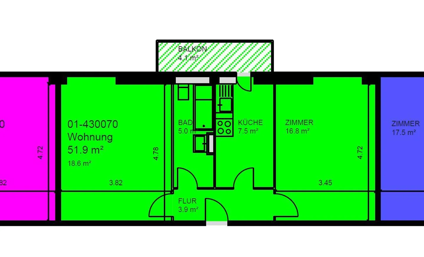
We are renting this small but fine 2-room apartment on the 2nd floor.
The apartment has the following features:
- Bright kitchen
- Bathroom with bathtub
- Balcony
- Entrance area
- Light-flooded living and dining room
The property has a lift and a common laundry room for shared use as well as a cellar compartment.
In the immediate vicinity is the motorway entrance as well as the Badischer Bahnhof, which provides you with various connections to public transport. The exhibition center is also just a few m...
Costs breakdown
- Net rent
- CHF 1'320
- Additional costs
- CHF 150
- Total rent
- CHF 1'320
Property details
- Available from
- By agreement
- Rooms
- 2
- Construction year
- 1953
- Renovation year
- 2012
- Living surface
- 59 m²
- Floor
- 2nd



