Apartment for rent - Wolfgrabenstrasse 15h, 8135 Langnau am Albis
Why you'll love this property
High-quality finishes
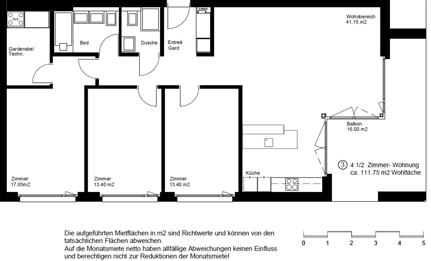
Spacious 16m2 balcony
Quiet family-friendly area
Arrange a visit
Book a visit with Miguel today!
New and bright family apartment in a nature-friendly location
This residential building was built in 2023 and has only five residential units. It is located in a family-friendly, quiet, green, and bright residential area, yet is still close to the village center, schools, and businesses, making the location even more attractive.
This apartment features a very appealing floor plan, high-quality materials and appliances, its own comfort ventilation in a separate utility room in the apartment, two bathrooms (one with a bathtub, the second with a large shower)...
Costs breakdown
- Net rent
- CHF 3'330
- Additional costs
- CHF 400
- Total rent
- CHF 3'330
Property details
- Available from
- 01.07.2026
- Rooms
- 4.5
- Construction year
- 2023
- Living surface
- 112 m²
- Usable surface
- 112 m²
- Floor
- 1st




