Apartment for rent - Konstanzerstrasse 15a, 8280 Kreuzlingen
Why you'll love this property
Spacious balconies for relaxation
Open kitchen with granite tops
Underfloor heating throughout
Arrange a visit
Book a visit with Jennifer today!
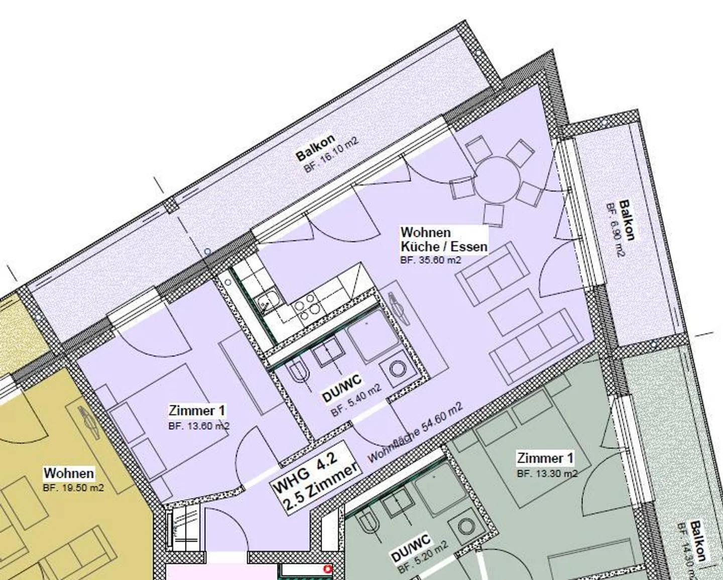
Residential Development Grenzmarkt South - Modern 2.5-Room Apartment in Central Location ...
We are renting this top-located 2.5-room apartment at Konstanzerstrasse 15a from July 1, 2026 or by arrangement.
A modern architectural style, a well-thought-out and functional floor plan with easily furnishable room structures will convince you. The spacious rooms and large balconies offer quality of life and the necessary space for your individual needs.
Apartment features:
- Kitchen: Open, white kitchen with granite countertop, ceramic glass cooktop, extractor hood, dishwasher, refrigerator with...
Costs breakdown
- Net rent
- CHF 1'658
- Additional costs
- CHF 180
- Total rent
- CHF 1'658
Property details
- Available from
- By agreement
- Rooms
- 2.5
- Living surface
- 55 m²
- Floor
- 4th



