Apartment for rent - Dynamostrasse 15, 5400 Baden
Why you'll love this property
Modern high-quality finishes
Generous outdoor loggia space
Excellent public transport access
Arrange a visit
Book a visit with Koch today!
Living in close proximity to the baden train station
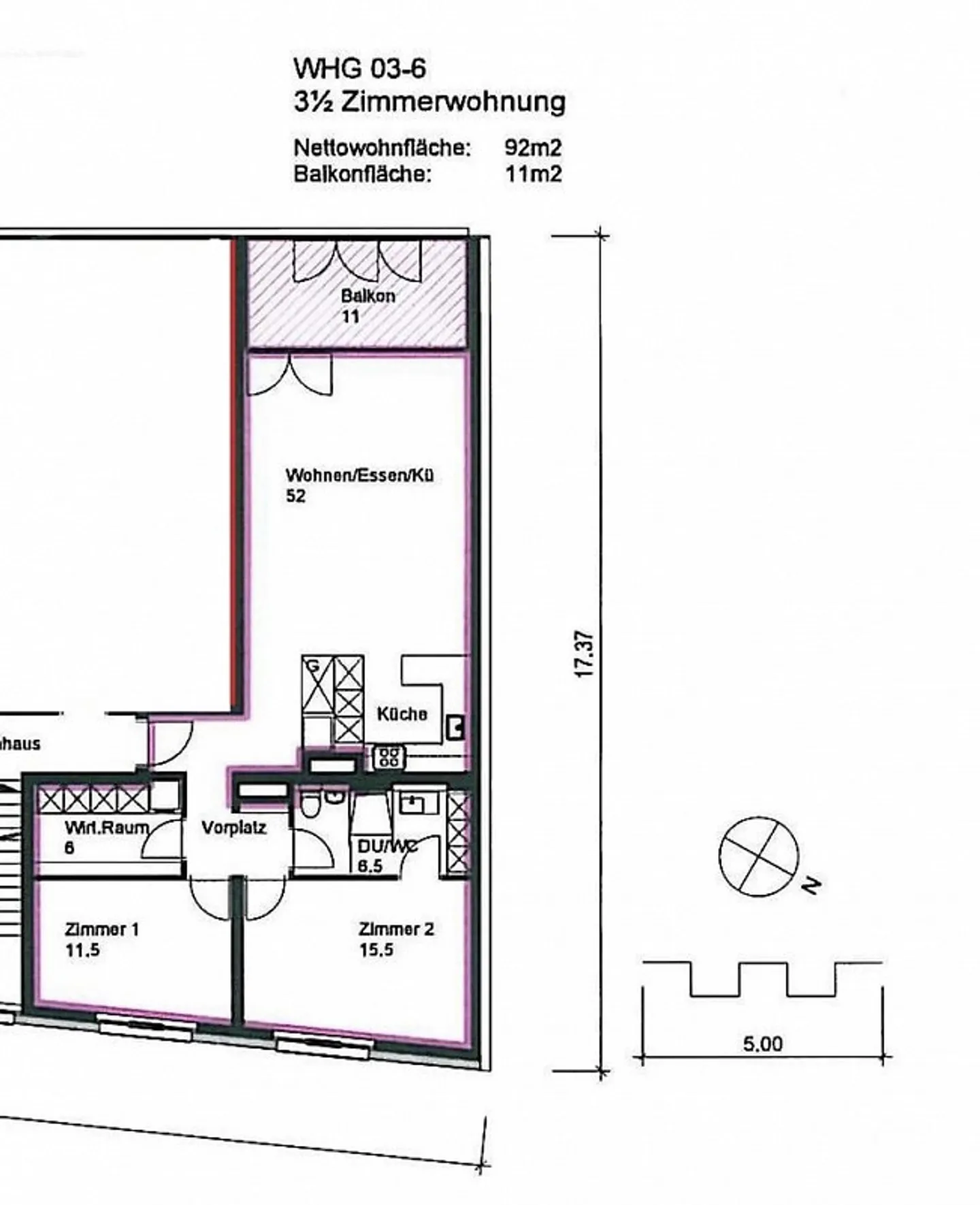
Are you looking for an attractive, spacious rental apartment in close proximity to the train station in Baden? Then this could be your new home:
The rental apartment:
- 3.5-room apartment
- Net living area of approx. 92 m2
- Outdoor area / loggia approx. 11 m2
- Modern and high-quality interior design
- Entrance area with generous wardrobe
- Spacious, open-plan living / dining / kitchen
- Two separate rooms
- Bathroom with shower / WC and numerous built-in wardrobes
- Reduit with its own washing machine /...
Property details
- Available from
- By agreement
- Rooms
- 3.5
- Living surface
- 92 m²
- Floor
- 3rd



