Apartment for rent - Rue De Bibracte 12a, 1580 Avenches
Why you'll love this property
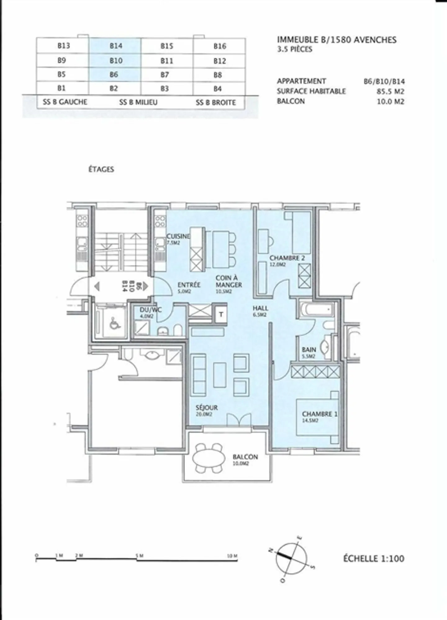
Bright and spacious design
10 m² sunny balcony
Access to large playground
Arrange a visit
Book a visit today!
Cross apartment
Cross apartment of 3.5 rooms on the 3rd floor. In a quiet and sunny area (Sur Fourches). The accommodation is modern, bright, and has very good comfort. It features a 10 m2 balcony. A large playground is available for all tenants.
Monthly rent Fr. 1,520 plus additional costs. Available from 01.10.2025
Underground or outdoor parking space available.
Viewing by appointment Tel: or
Property details
- Available from
- By agreement
- Rooms
- 3.5
- Floor
- 1st



