Apartment for rent - Eigerweg 12, 3177 Laupen BE
Why you'll love this property
Quiet rural location
Close to shopping
Modern kitchen amenities
Arrange a visit
Book a visit with Michèle today!
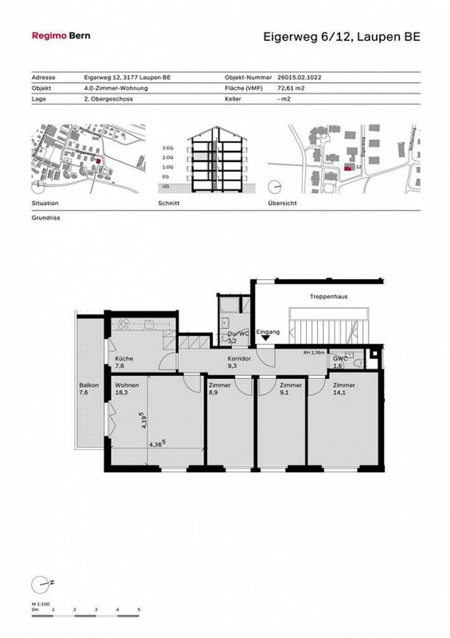
RENT WITHOUT DEPOSIT - Quiet residential area, yet centrally located
This multi-family house is located in a quiet area and rural surroundings. The center of the historic town of Laupen, shopping facilities, schools, and the local recreation area Sense are within a few minutes' walk.
For your living quality:
- Parquet and tiled floors
- Closed kitchen with dishwasher and ceramic glass stove
- Bathroom with shower/WC
- Separate WC
- Built-in wardrobes in the corridor
- Balcony
- Cellar
The property has no lift.
Additionally on request: Outdoor parking space CHF 40.00 / mont...
Costs breakdown
- Net rent
- CHF 1’384
- Additional costs
- CHF 250
- Total rent
- CHF 1’384
Property details
- Available from
- By agreement
- Rooms
- 4
- Construction year
- 1969
- Renovation year
- 2012
- Living surface
- 72 m²
- Floor
- 2nd



