Apartment for rent - Fürstenlandstrasse 119, 9014 St. Gallen
Why you'll love this property
Spacious kitchen area
Sunny balcony space
Near public transport
Arrange a visit
Book a visit with Willi today!
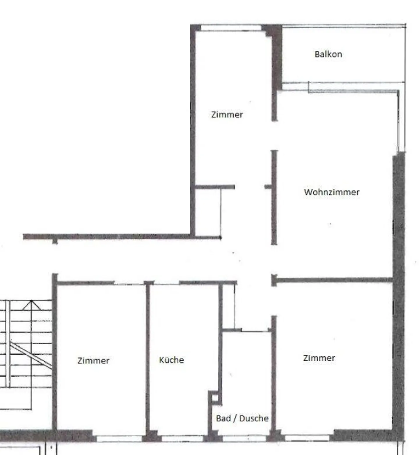
Furnished 3.5 room apartment on the ground floor
In an urban residential area at Fürstenlandstrasse 119 in St. Gallen, we are renting out a fully furnished 3.5 room apartment on the ground floor from May 1, 2026, or by arrangement.These highlights await you:Spacious kitchenBright bathroom with shower, window, washbasin and toiletSunny balconyKitchen and bathroom with tiled floorRooms with wooden floorCellar compartment in the basementLaundry room and drying room for shared useOutdoor parking space can be rented for CHF 50.00A bus stop is direc...
Costs breakdown
- Net rent
- CHF 1’730
- Additional costs
- CHF 240
- Total rent
- CHF 1’730
Property details
- Available from
- By agreement
- Rooms
- 3.5
- Construction year
- 1963
- Living surface
- 79 m²
- Floor
- Ground



