Apartment for rent - Rue Franche / Freiestrasse 11, 2502 Biel/Bienne
Why you'll love this property
Open kitchen with dishwasher
Generous balcony space
No deposit required
Arrange a visit
Book a visit today!
Rent without deposit - plenty of space for relaxation from the hectic everyday life
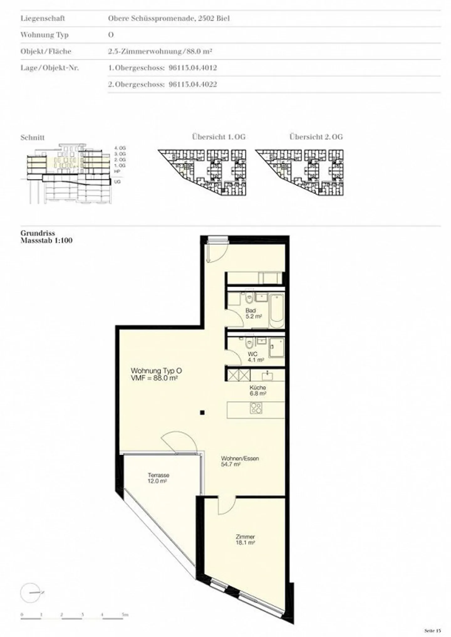
In these spacious, bright rooms, life can really unfold. But there are more good reasons to choose this apartment. For example, the high comfort and the immediate proximity to the old town as well as to the numerous shopping opportunities.
For your living quality:
- open kitchen with ceramic glass and dishwasher
- bathroom with bath/WC
- bathroom with shower/WC
- own washing machine and own tumbler
- wardrobes at the entrance
- generous balcony
- cellar compartment
- lift
Additionally on request: parking ...
Costs breakdown
- Net rent
- CHF 1’720
- Additional costs
- CHF 180
- Total rent
- CHF 1’720
Property details
- Available from
- 16.12.2025
- Rooms
- 2.5
- Construction year
- 2012
- Living surface
- 89 m²
- Floor
- 2nd



