1 / 2

Apartment for rent - Schlossbergstrasse 10, 6312 Steinhausen

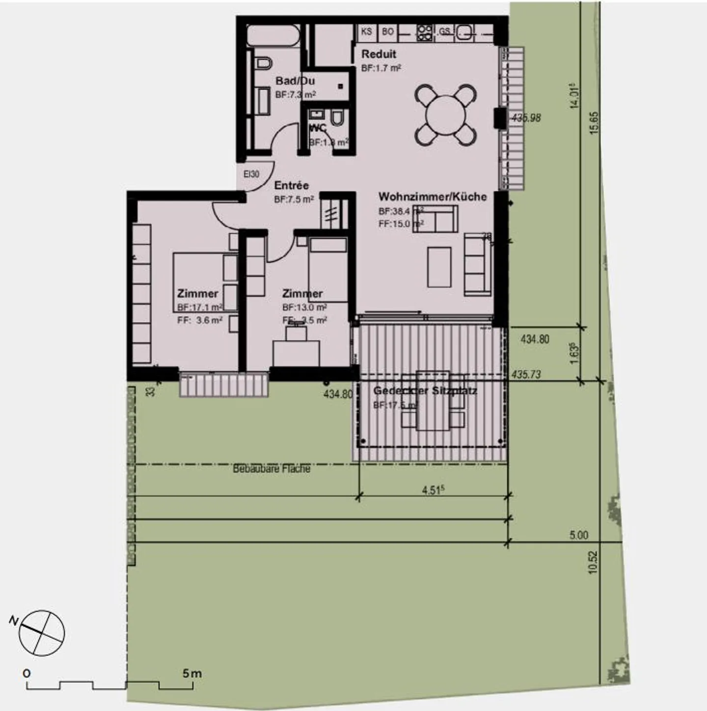
3.5 rooms • 87 m² • Ground floor
CHF 3’150.-
CHF 434 m² / year

Why you'll love this property

Spacious garden area

Modern kitchen with steamer

Minergie standard building

Arrange a visit

Book a visit with Werder today!

Werder
STS Immobilien AG
This description has been automatically translated from German.

Modern 3.5-room garden apartment

The Schlossberg is a viewpoint in the municipality, due to its outstanding location and many green spaces, it offers excellent living and quality of life with a rural flair in a central location in Steinhausen. The municipality of Steinhausen is located near the city of Zug and Lake Zug. The Steinhauser Forest with its idyllic forest lake is an ideal place to relax.

The properties on Schlossberg are situated slightly elevated. The large glass areas of the living spaces convey modern spaciousness....

Property details

Available from
By agreement
Rooms
3.5
Construction year
2019
Living surface
87
Floor
Ground
Building floors
3

Features

Garage
Balcony
Elevator
Cellar
Cable TV
Internet
Minergie certified

Agency

STS Immobilien AG
STS Immobilien AG
Address:Rotkreuz, Luzernerstrasse, 6343
(6 reviews)
Ref: 10B
Online since
18/10/2025
7 hours ago

Location

Schlossbergstrasse 10, 6312 Steinhausen