Apartment for rent - Allée Des Cèdres 10, 1022 Chavannes-près-Renens
Why you'll love this property
Smart room layout
Close to amenities
Private washing machine
Arrange a visit
Book a visit with Naoual today!
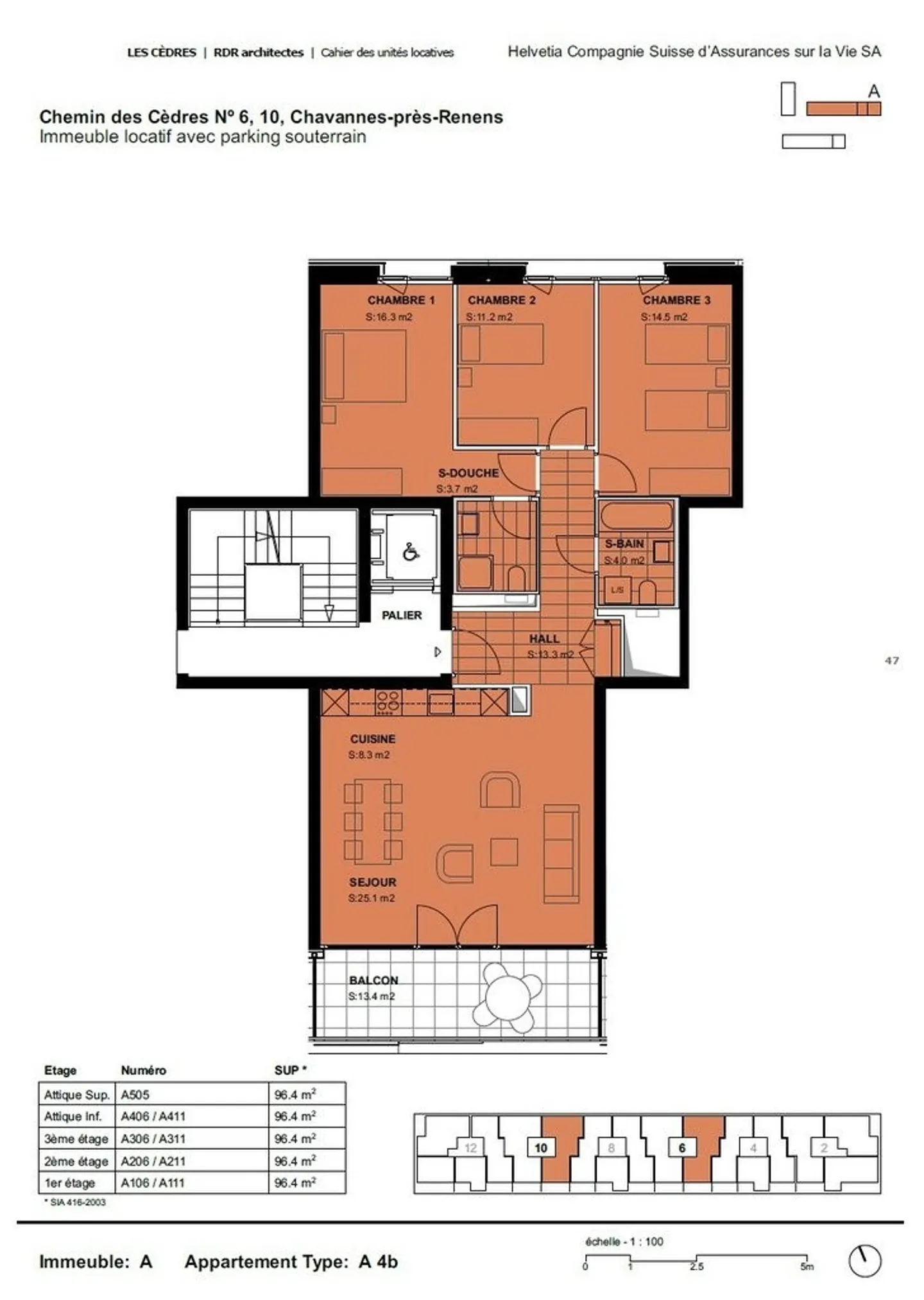
Are you looking for an apartment where you can live well, with parking?
A city within a city, you appreciate the proximity to the M1 as well as the various shops and services. You live here in a neighborhood that offers a quick walk to the various amenities.
Thanks to the intelligent room distribution of approximately 96.4 m2, living here will delight you. The apartment is easy to furnish and has a balcony. This apartment also offers the following amenities:
- Living room with parquet
- Fitted kitchen and open kitchen to the living room
- 2 bedrooms
- 1 master bedroom w...
Costs breakdown
- Net rent
- CHF 3'127
- Additional costs
- CHF 357
- Total rent
- CHF 3'127
Property details
- Available from
- 01.07.2026
- Rooms
- 4.5
- Construction year
- 2019
- Living surface
- 96 m²
- Floor
- 2nd


