Apartment for rent - Allée Des Cèdres 10, 1022 Chavannes-près-Renens
Why you'll love this property
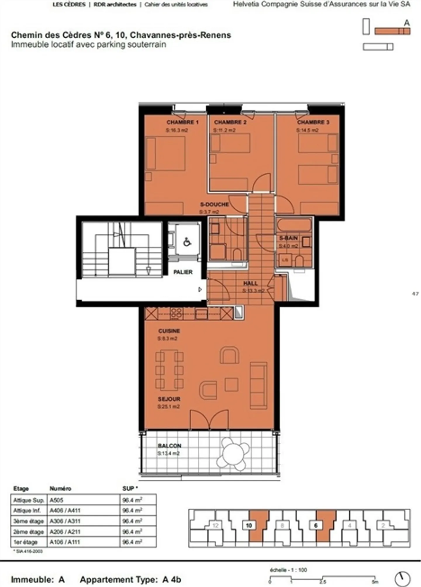
Smart space layout
Private laundry column
Close to amenities
Arrange a visit
Book a visit today!
Are you looking for a place to live with parking
A city within a city, you will appreciate the proximity to the M1 as well as the various shops and services. You live here in a neighborhood offering quick access on foot to various amenities.
Thanks to the smart distribution of space of approx. 96.4 m2, the accommodation will charm you. The apartment is easily adaptable and has a balcony. This accommodation also features the following amenities:
- Living room with parquet
- Fitted kitchen open to living room
- 2 bedrooms
- 1 master suite with showe...
Property details
- Available from
- By agreement
- Rooms
- 4.5
- Construction year
- 2019
- Floor
- 4th



