Commercial building plot for sale - 6989 Purasca
Why you'll love this property
Quiet green area
Open views and sunlight
Approved project included
Arrange a visit
Book a visit today!
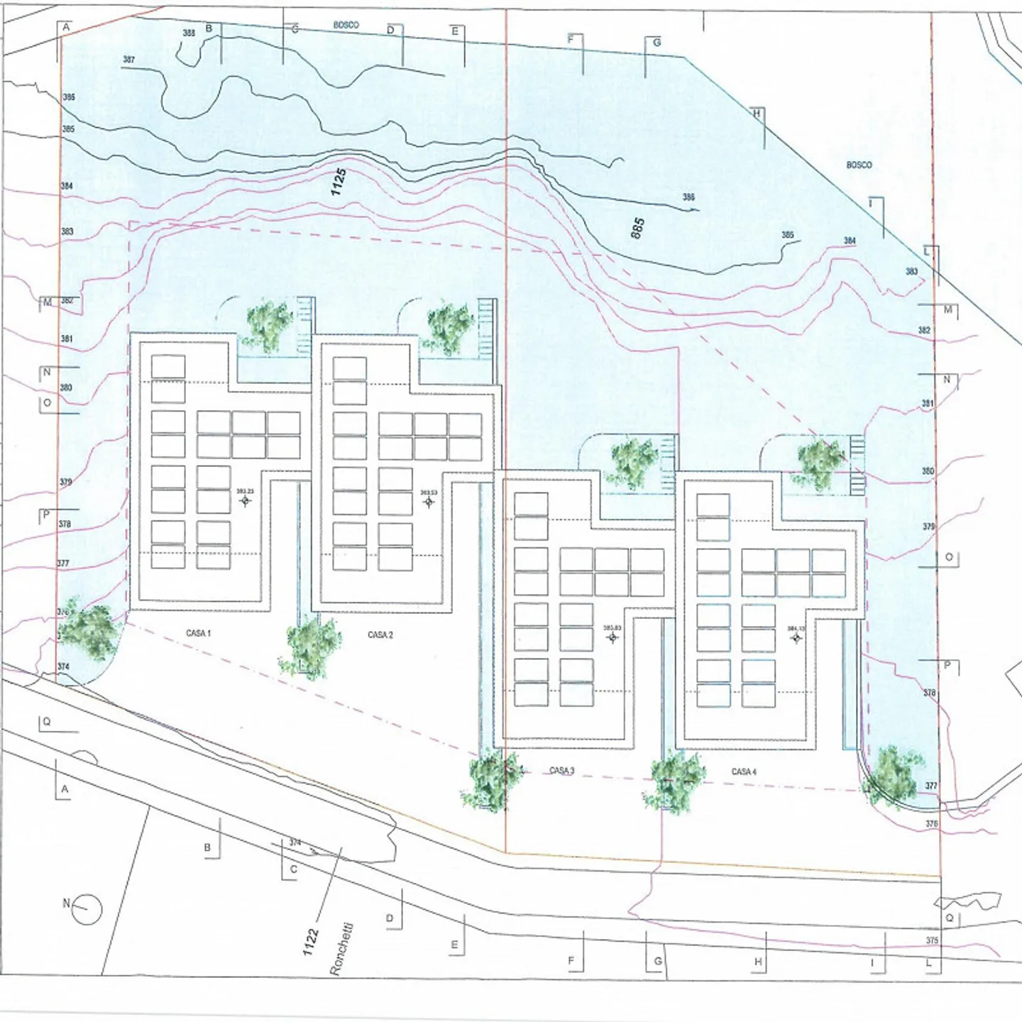
BEAUTIFUL LAND WITH APPROVED LICENSE IN PURASCA
Beautiful land of about 2144 sqm buildable with approved R2 license in a beautiful quiet area surrounded by greenery suitable for the construction of 4 single-family homes on a maximum of 2 levels with a total of about 683 sqm of SUL, located in a beautiful context in Purasca with open views and greenery. The project also includes the construction of covered private parking spaces.
Exploitation Index: 0.4;
Occupation Index: 35%;
Distance from the Border: 3.5 m;
Max Height: 9.4 m;
Total SUL: about 683...
Property details
- Available from
- By agreement
- Land surface
- 2144 m²



