Constructible plot for sale - 6936 Cademario
Why you'll love this property
Flat, sunny building plot
Close to schools and wellness
Perfect for a private villa
Arrange a visit
Book a visit with Tamburini today!
The ideal land for your single-family home
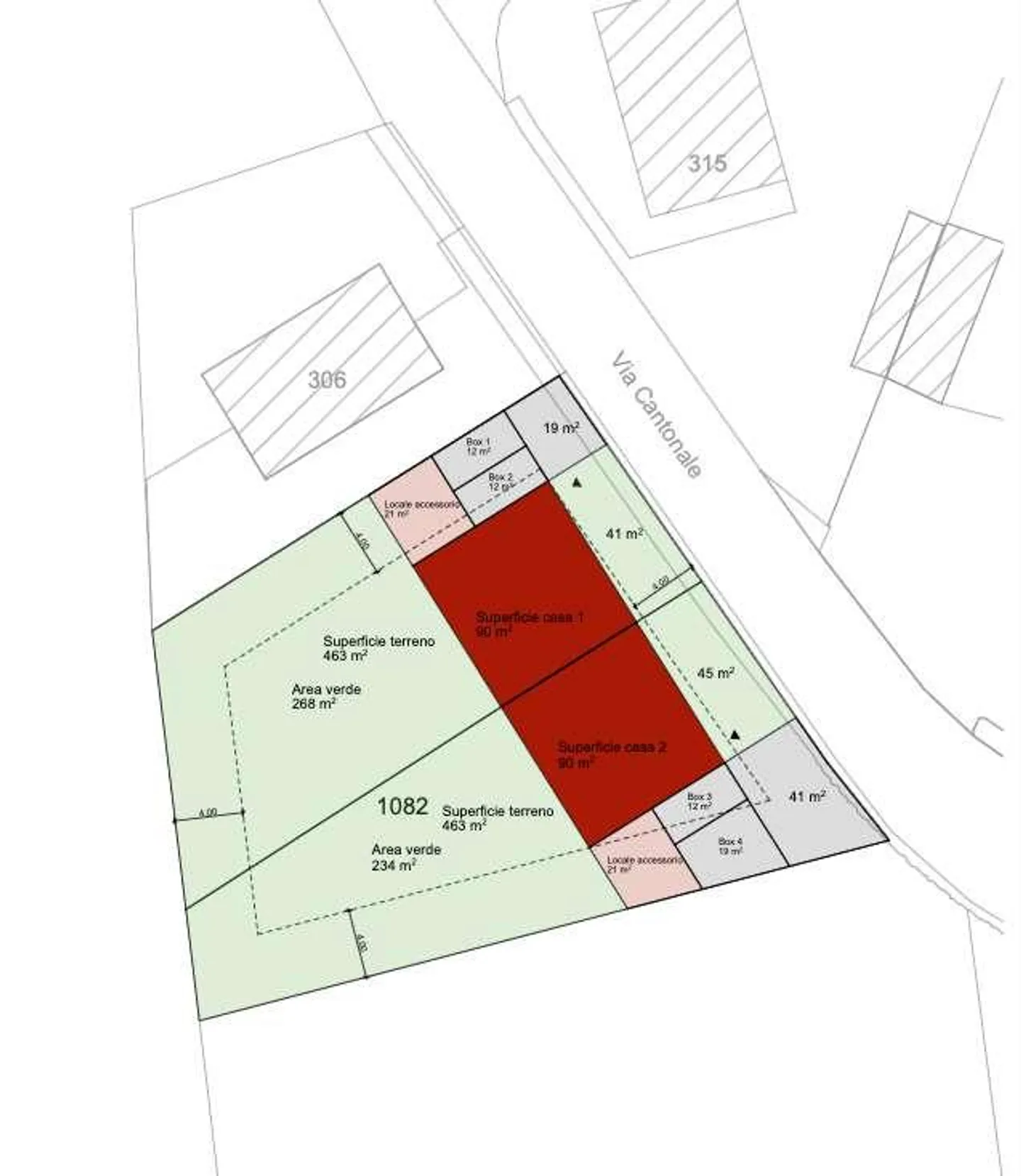
In the municipality of Cademario, in a quiet and sunny residential context, we offer for sale a flat building plot of approximately 460 square meters, ideal for those who wish to build a modern and functional house in a green and relaxing environment. The location is strategic: nearby are the school center and the renowned Kurhaus wellness center, reachable in a few minutes. Thanks to the favorable south-east exposure, the lot benefits from excellent natural light, making it perfect for designin...
Property details
- Available from
- By agreement




