Constructible plot for sale - 6723 Prugiasco
Why you'll love this property
Renovation project approved
Ideal for primary residence
Includes garage and basement
Arrange a visit
Book a visit today!
Building land with approved project in Prugiasco
For Sale: Building land + house for renovation with approved project.
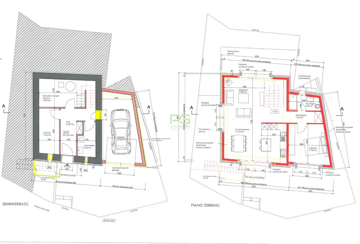
The new building would be renovated as follows:
- Ground floor: Entrance hall, technical room, laundry room, wine cellar, garage, staircase
- First floor: Bedroom, living room, dining room, kitchen, WC/shower, staircase
- Upper floor: Master bedroom, bedroom, WC/bathroom
The construction costs (CCC) have been estimated at Fr. 450,000.-.
Possibility to purchase as a primary or secondary residence.
Property details
- Available from
- By agreement
- Rooms
- 4.5



