Single house for sale - Im Chrüzacher, 8174 Stadel b. Niederglatt
Why you'll love this property
Beautiful garden oasis
Smart home features
Quiet family-friendly area
Arrange a visit
Book a visit today!
Well-maintained 5.5-room single-family house with beautiful garden
Attractive 5.5-room single-family house in a quiet location in Stadel near Niederglatt ZH
We are selling a very well-maintained 5.5-room single-family house at Chrüzacher 6 in Stadel near Niederglatt ZH on behalf of the owner. The property is located in a quiet, family-friendly single-family house neighborhood with a cul-de-sac and features a beautiful garden. The local recreation area and the forest are in close proximity.
The bus stop with regular connections to Bülach and Zurich Airport is only...
Property details
- Available from
- By agreement
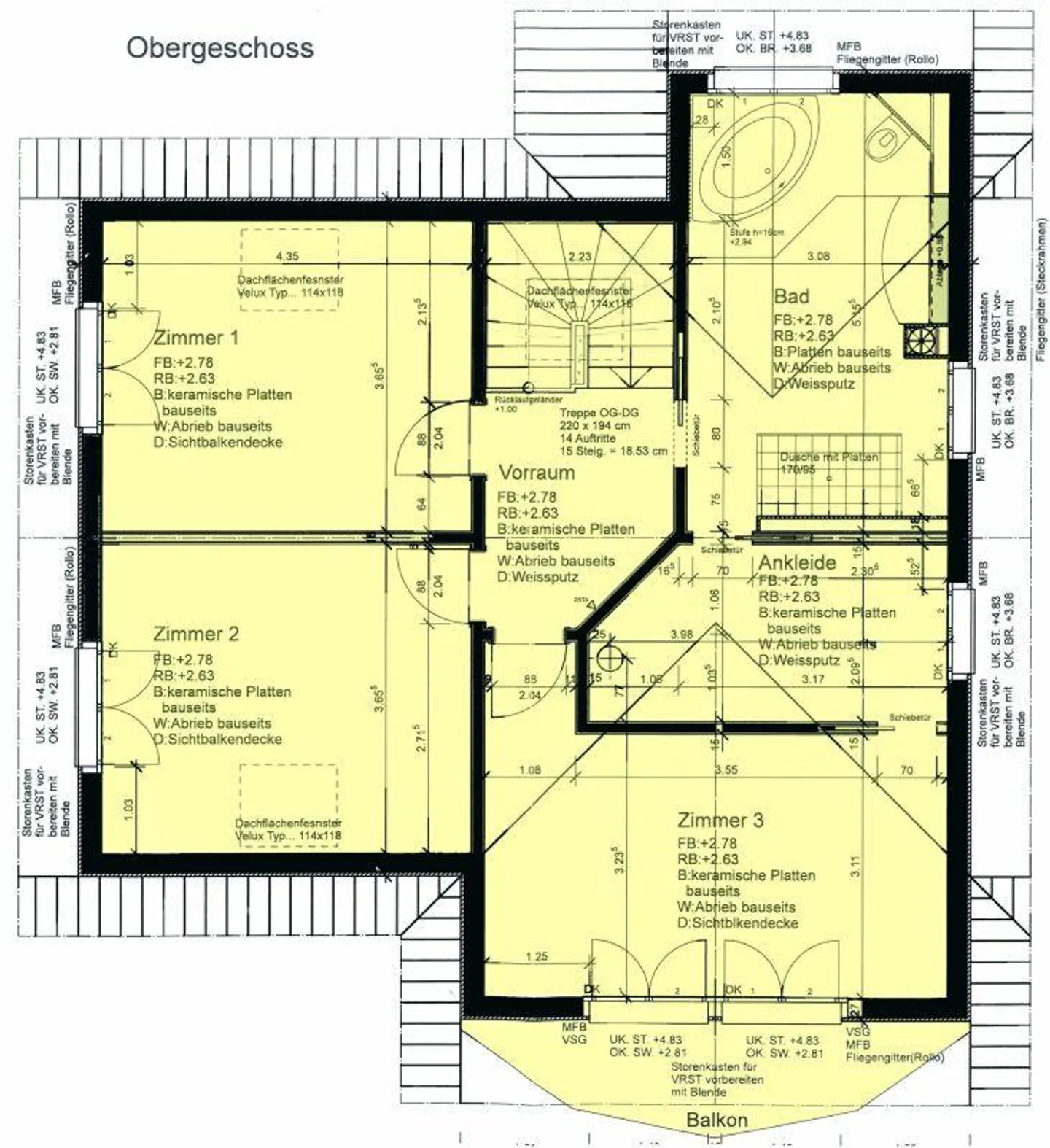
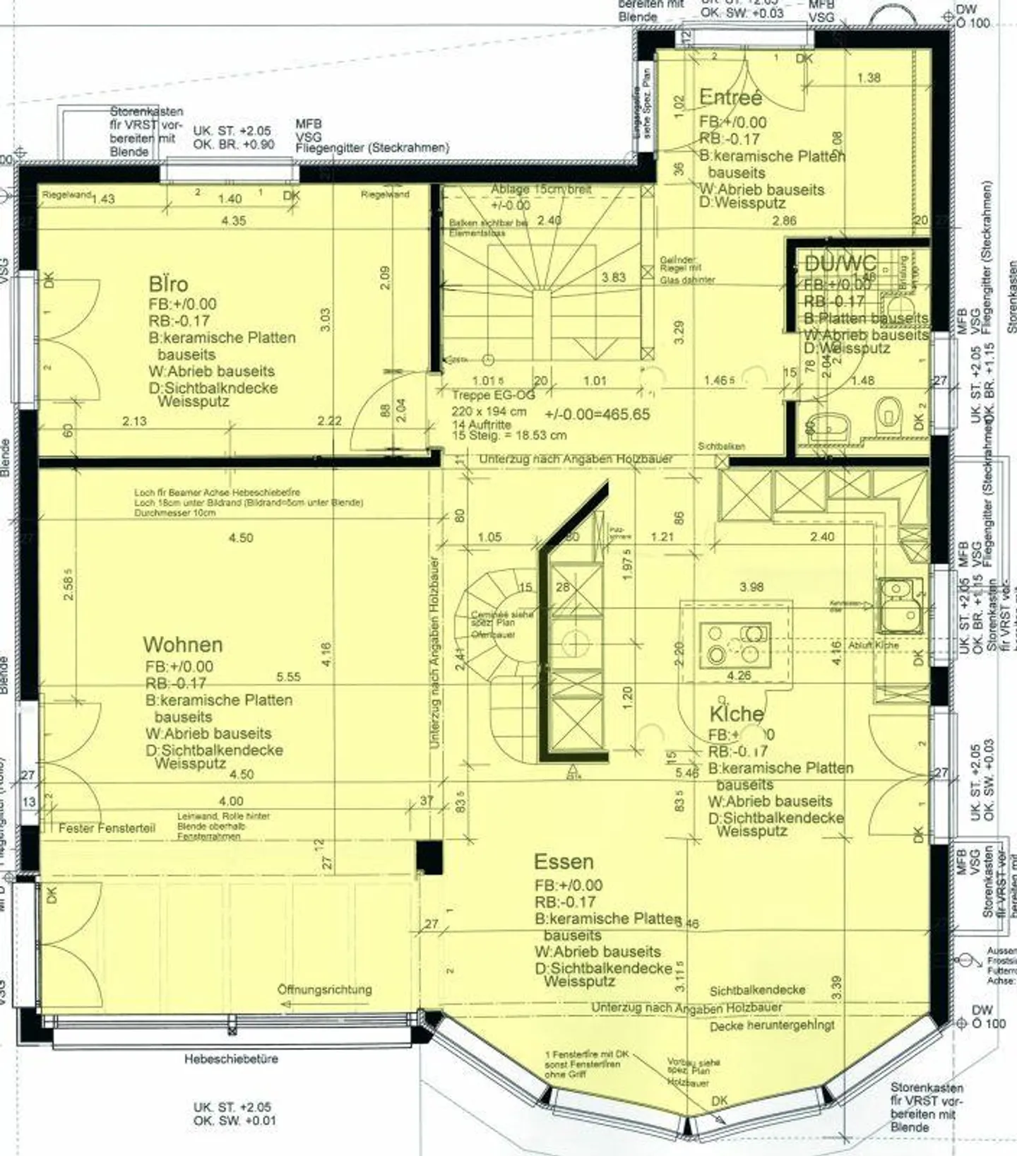
- Rooms
- 5.5
- Bathrooms
- 2
- Construction year
- 2004
- Living surface
- 305 m²
- Land surface
- 670 m²



