Single house for sale - Corniche Du Soleil, 3960 Muraz (Sierre)
Why you'll love this property
Breathtaking Alpine views
Spacious outdoor terraces
Modern design with quality finishes
Arrange a visit
Book a visit today!
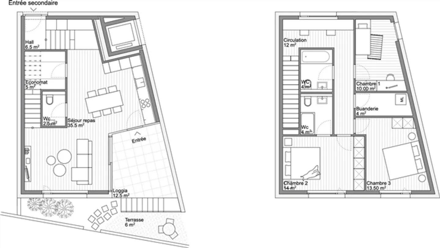
Magnificent off-plan villa corniche du soleil - sierre
Nestled in the heights of Sierre, "Les villas Corniche du Soleil" offer a unique opportunity to live in an environment that combines tranquility, comfort, and an unobstructed view of the Valais Alps. Designed and developed by the architectural firm "GASSER SIGGEN Architectes SA", these villas are located in a quiet residential area on a south-facing plot with optimal sunlight exposure. The location of these villas provides privileged access to all the amenities of the city while preserving abso...
Property details
- Available from
- By agreement
- Rooms
- 4.5



