Row house for sale - Chemin Des Verney, 1297 Founex
Why you'll love this property
Modern architecture design
Spacious sunny terrace
Close to Geneva Airport
Arrange a visit
Book a visit with Silvia today!
Future magnificent villa for you!
Discover a new real estate project in the heart of the charming commune of Founex, in the canton of Vaud.
Ideally located in a peaceful and green setting, these villas will benefit from modern architecture and high-quality materials, meeting the requirements of current standards.
The commune of Founex enjoys a privileged location, offering easy access to numerous amenities.
The villas are only 20 minutes from Geneva airport, 5 minutes from the motorway, and close to internationally renowned scho...
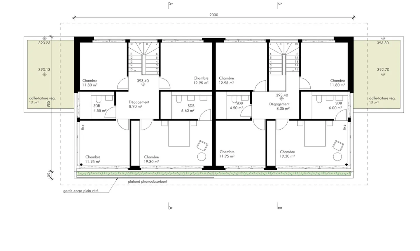
Property details
- Available from
- 01.07.2027
- Rooms
- 6.5
- Construction year
- 2026
- Living surface
- 186 m²
- Usable surface
- 239 m²
- Land surface
- 840 m²



