Chalet for sale - Chemin De La Gare, 1884 Villars-sur-Ollon
Why you'll love this property
Independent entrances
Spacious outdoor terraces
Central location amenities
Arrange a visit
Book a visit with Alfred today!
Magnificent chalet with three apartments in the center of Villars
We offer for sale a property ideally located in the center of Villars-sur-Ollon, consisting of 2 adjoining chalets bringing together 3 apartments with independent entrances.
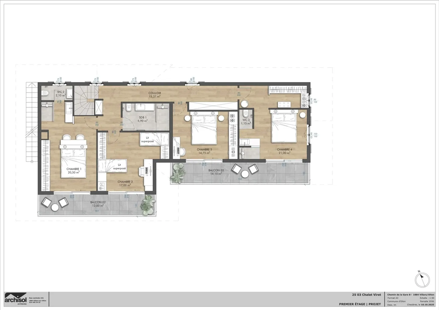
We sell it either as is or with a project to transform it into a high-end chalet (see plans)
Located in the center of Villars-sur-Ollon, all amenities such as restaurants, pharmacy, tea room, bank, shops, sports center, public transport are within reach.
This double chalet is composed as follows:
Lower ground floor:
- Apartme...
Property details
- Available from
- By agreement
- Bathrooms
- 5
- Construction year
- 1945
- Living surface
- 220 m²
- Land surface
- 712 m²
- Terrace surface
- 69.1 m²
- Balcony surface
- 2.6 m²



