1 / 20

Single house for sale - Badstrasse, 9410 Heiden

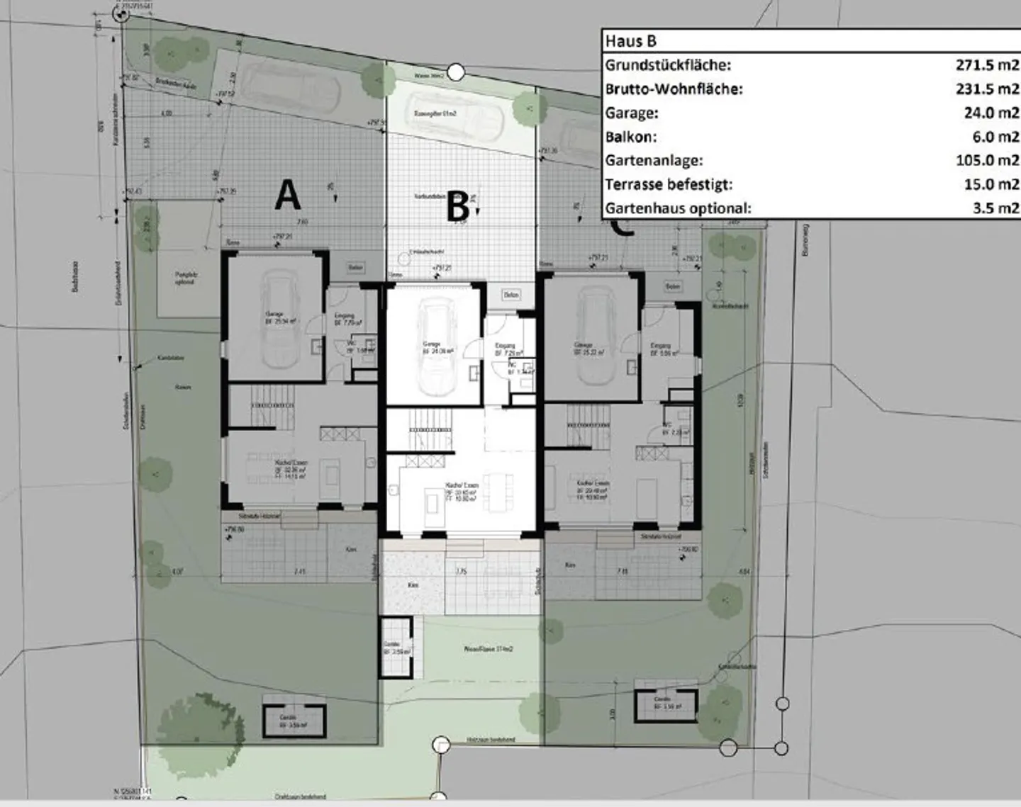
6.5 rooms • 232 m² • 272 m² Plot • Ground floor
Price on request
-

Why you'll love this property

Spacious garden with garden house

Modern open kitchen design

Quiet, child-friendly location

Arrange a visit

Book a visit with Theres today!

Theres De Luca
delucaimmo GmbH
This description has been automatically translated from German.

Rare opportunity in heiden – sunny family house with great potential

Discover our attractive, spacious 6.5-room middle house, built in 2024, with southern flair, private garden, and garden house in a very quiet, child-friendly location, in a 30 km/h zone, close to the center and schools.

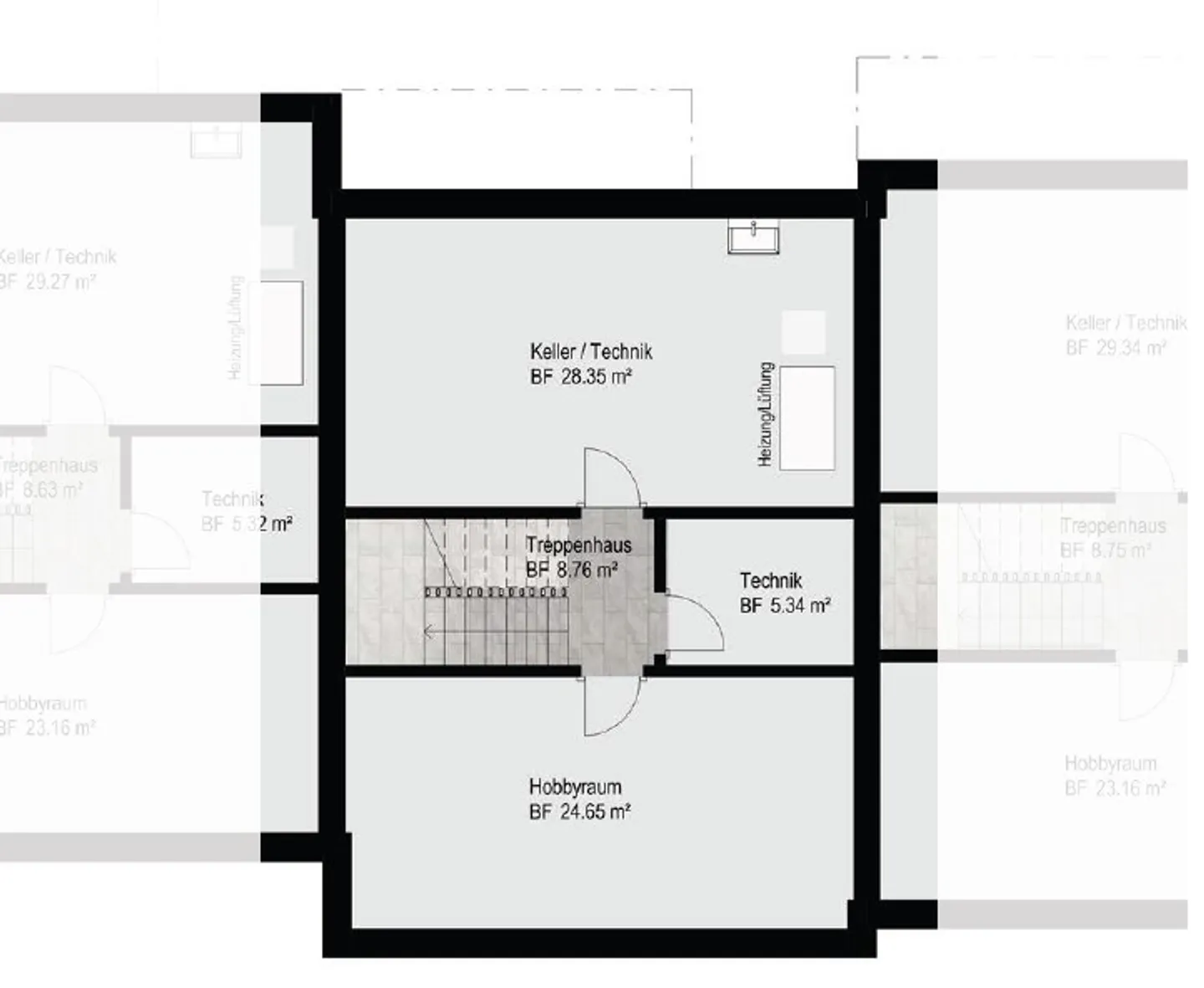
* _Gross floor area 231.5 m2_

* _Plot area 271.5 m2_

* _idyllic seating area_

* _open, top-modern kitchen with dining area, with access to the garden_

* _on the upper floor: a lot of peace and retreat options:_ _large children's rooms and separate bathroom_

* _Generous, light-flooded l...

Property details

Available from
By agreement
Rooms
6.5
Construction year
2024
Living surface
232
Land surface
272

Features

Garage
Balcony
Parking
Minergie certified
Child friendly

Agency

delucaimmo GmbH
delucaimmo GmbH
Address:Rehetobelstrasse 87, 9016, St. Gallen
(13 reviews)
Ref: lci1g.xx5rz
Online since
16/10/2025
2 days ago

Location

Badstrasse, 9410 Heiden