Single house for sale - Via Industrie 8a, 6512 Giubiasco
Why you'll love this property
Spacious fenced garden
Close to train station
Quiet family-friendly area
Arrange a visit
Book a visit with Luigi today!
Einfamilienhaus mit 4.5 Zimmern und Garten in Giubiasco
Einfamilienwohnhaus in Giubiasco in Wohngegend.
Erstellt im Jahr 1991 und später erweitert, besteht es aus:
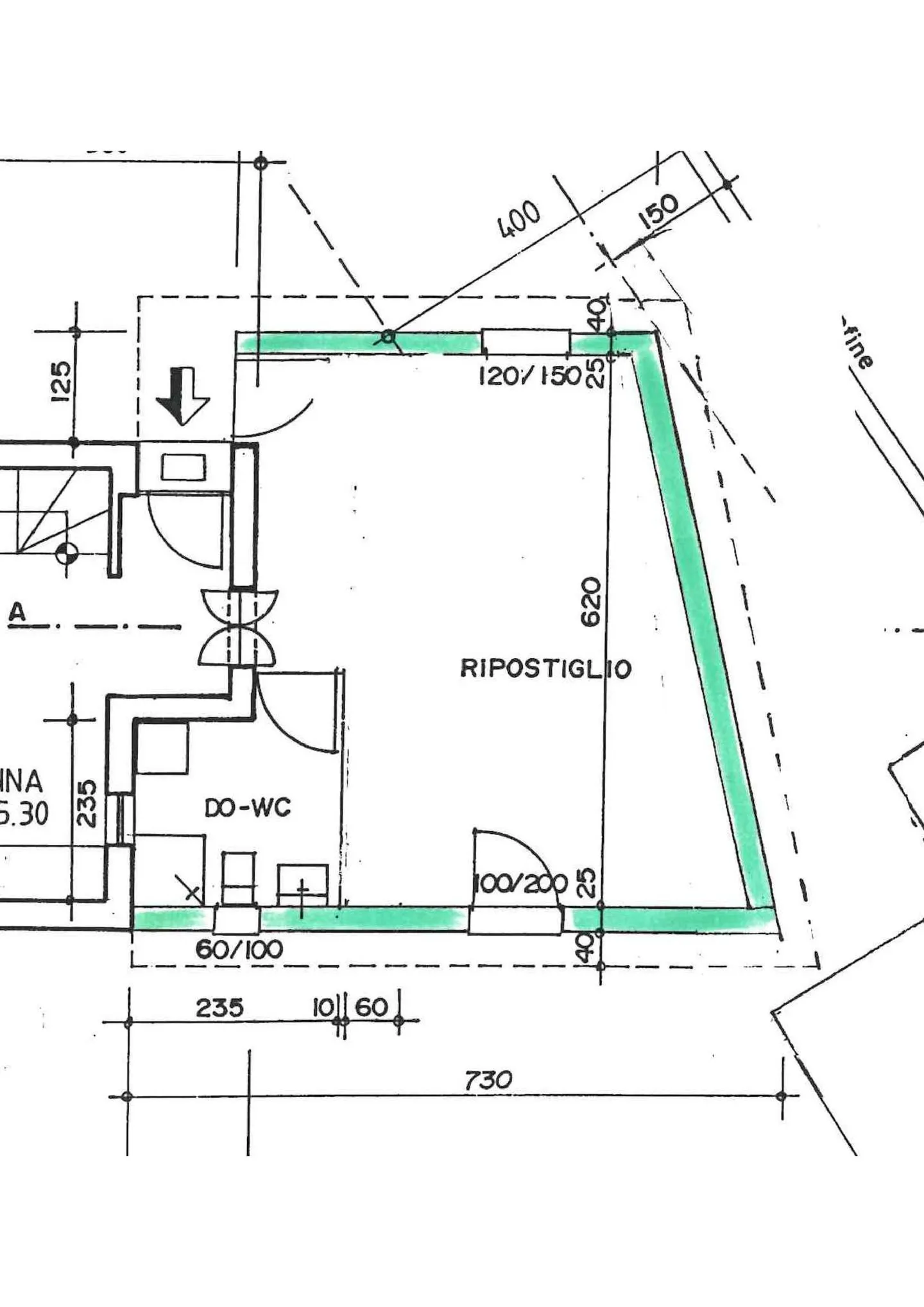
EG: Wohn-Esszimmer-Küche mit Ofen, verfügbarer Raum, Dusche-WC-Waschküche, Eingangsvorhof
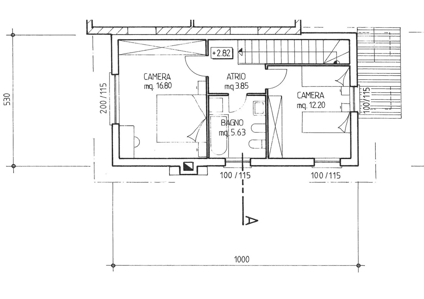
1. Obergeschoss: 2 Schlafzimmer, Badezimmer-WC
Das Grundstück verfügt über einen ca. 300 m² großen umzäunten Garten, Abstellraum und 2 Außenparkplätze, in strategischer Lage in der Nähe des Bahnhofs, Autobahnanschluss und 5 Minuten von der Piazza Grande und allen wichtigsten Dienstleistungen.
Dieses Objekt...
Property details
- Available from
- By agreement
- Rooms
- 4.5
- Construction year
- 1991
- Living surface
- 119 m²
- Land surface
- 399 m²
- Building volume
- 660 m³




