Row house for sale - Route Du Moulin-Roget 7, 1237 Avully
Why you'll love this property
Energy-efficient design
Customizable interiors
Peaceful green surroundings
Arrange a visit
Book a visit today!
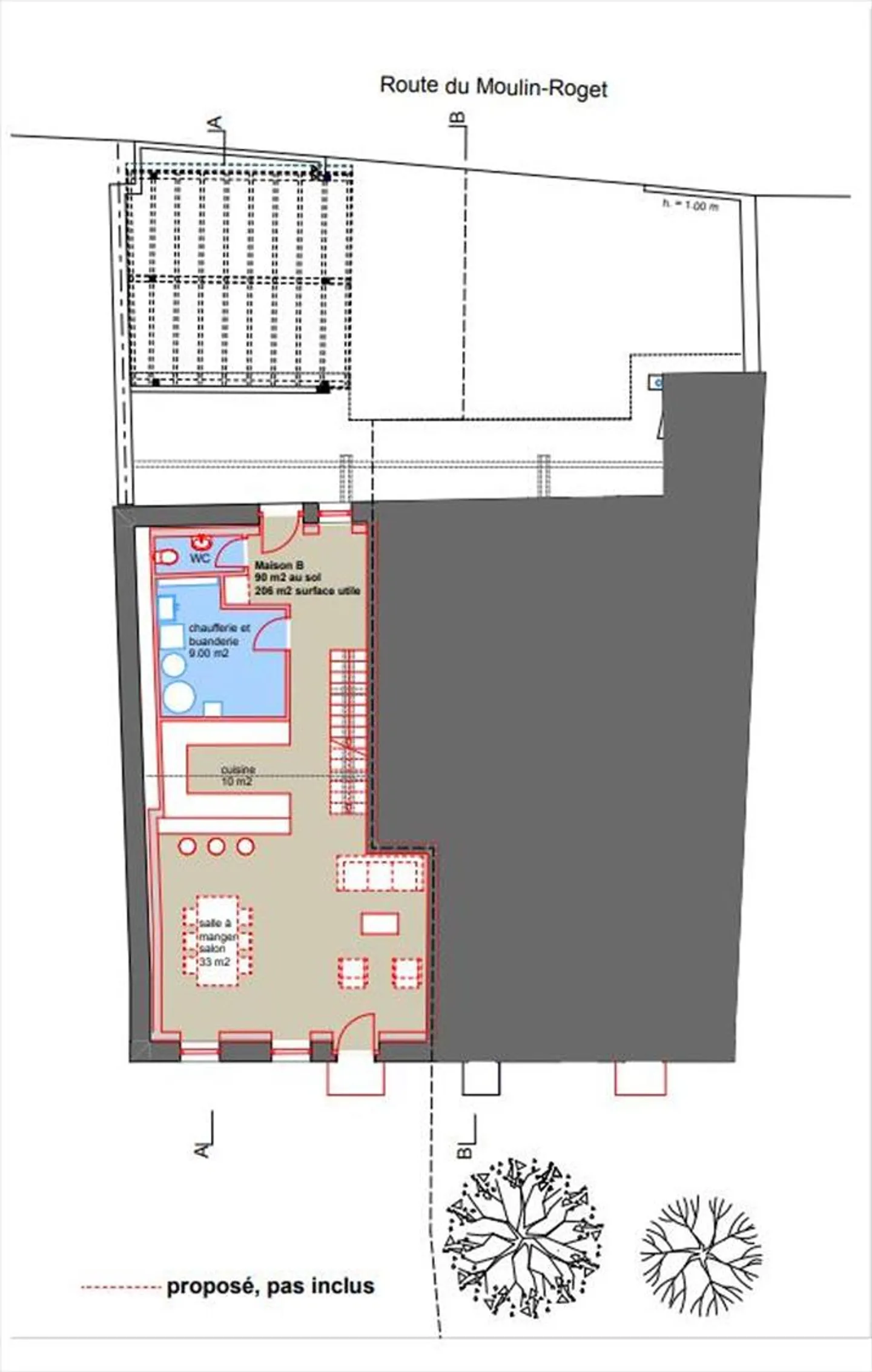
The grange de moulin roget - promotion of 2 contiguous villas - lot b
Located in the heart of the village of Avully, this new promotion, presented in collaboration with Friedli Consulting, is the result of the renovation of an old barn. It will consist of two contiguous houses on two levels with attics, compliant with HPE (High Energy Performance) standards, for sale on plans.
Combining the authenticity of the old with modern touches, this project will charm you with its peaceful and green setting.
Built on a plot of 465 m2, villa B will offer a living area of 206...
Property details
- Available from
- By agreement
- Rooms
- 6
- Construction year
- 2026
- Living surface
- 206 m²
- Land surface
- 465 m²



