Single house for sale - 6950 Tesserete
Why you'll love this property
Historic Liberty architecture
Spacious 2000 m² plot
Approved renovation plans
Arrange a visit
Book a visit with Stabile today!
Villa in Liberty Style from 1911 with Buildable Land in Tesserete
In the heart of Tesserete, on a lush, private plot of almost 2,000 m², we offer an unparalleled opportunity: a magnificent Liberty-style villa dating back to 1911 that is in need of renovation.
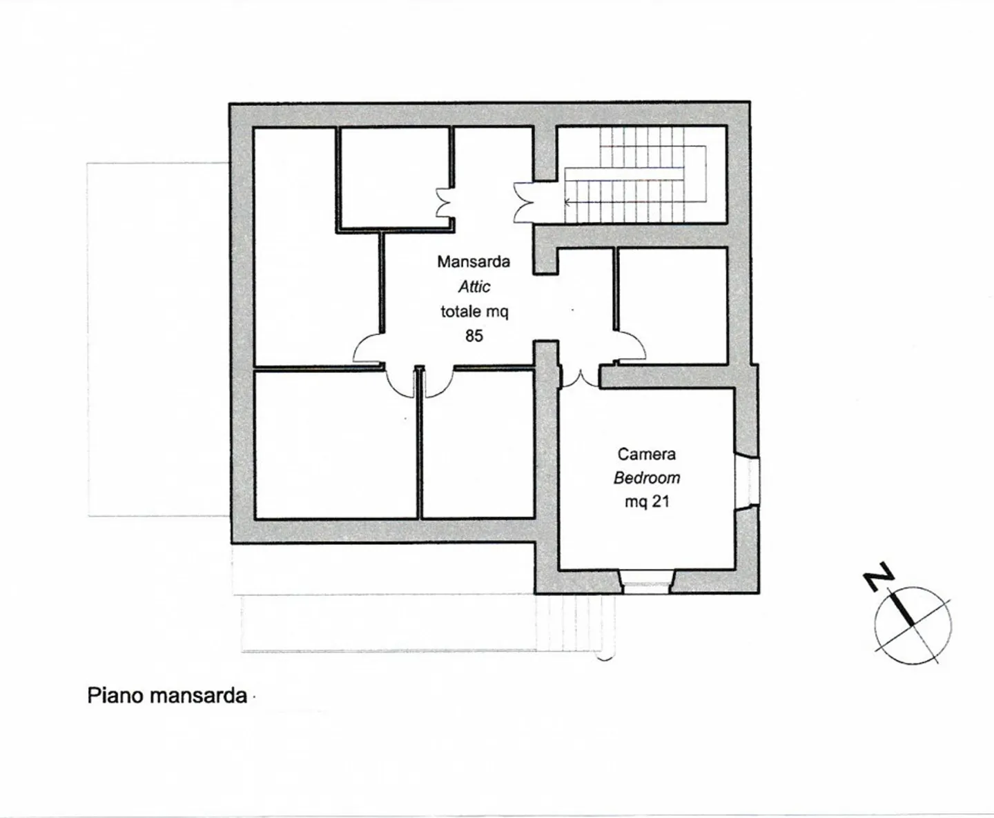
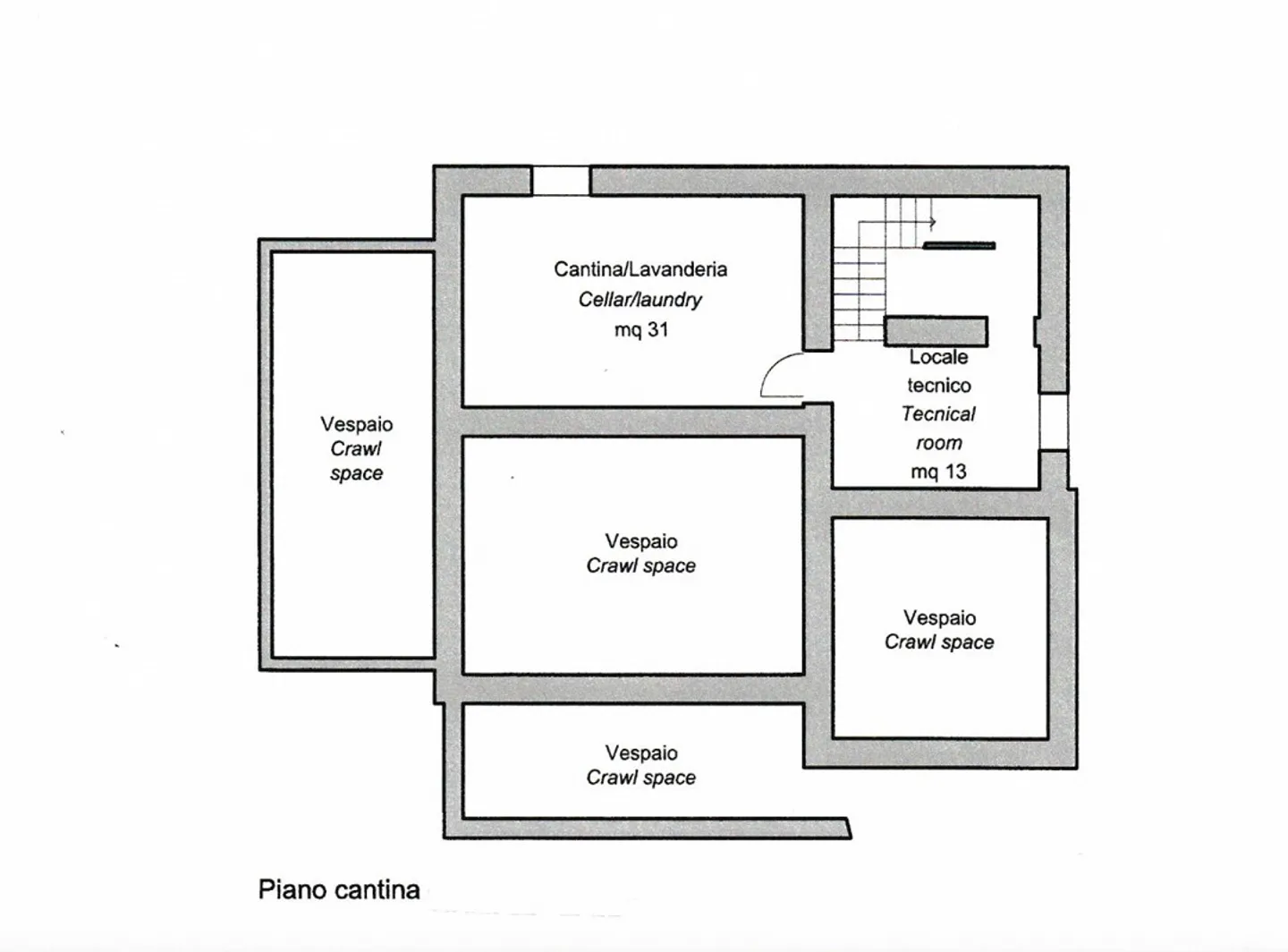
The property extends over three floors and includes 14 rooms, with a total usable area of about 500 m², as well as a dependence with garage, just a few steps from the main services.
The property can be purchased as a second home (in the sense of LASEC) without any residency obligation.
THE IMAGES OF THE P...
Property details
- Available from
- 11.07.2025
- Rooms
- 14
- Construction year
- 1900
- Living surface
- 500 m²
- Usable surface
- 500 m²
- Land surface
- 1918 m²



