Single house for sale - 6936 Cademario
Why you'll love this property
Stunning panoramic views
Modern renovation with charm
Cozy living room with fireplace
Arrange a visit
Book a visit with Stabile today!
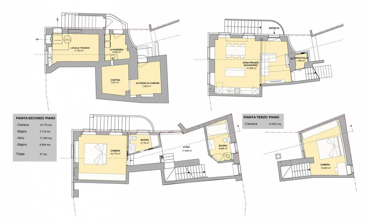
Beautiful house with 4.5 rooms renovated with lake view in Cademario
In the heart of the fascinating village center of Cademario, in a light setting, lies this charming house with 4.5 rooms and about 130 m² of living space, including technical rooms, completely renovated in 2017 with great attention to detail.
A perfect residence for those who want to live in a very bright and sunny environment, with a breathtaking panoramic view of the lake and the mountains, offering unique emotions every day.
The property is currently rented and will be available on request in...
Property details
- Available from
- By agreement
- Rooms
- 4.5
- Construction year
- 1900
- Living surface
- 100 m²
- Usable surface
- 130 m²



